ワールドタワーレジデンス 26階

  • 総合トップ
  • 中古マンション
  • 一戸建て・土地
  • 投資・収益物件
  • 売りたい[売却査定]
  • 貸したい[賃料査定]

ワールドタワーレジデンス 26階
新着

価格
39,000
毎月の返済額
(目安)
loansimulationIcon
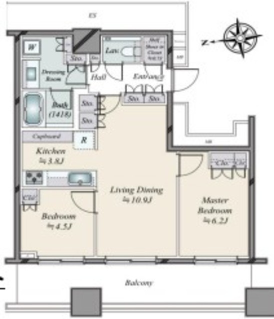
築年月 2024年11月 間取り 2LDK+SIC
専有面積 60.26m2 所在階 26階
方角 西
所在地 東京都港区浜松町2-3-9
交通 JR山手線「浜松町駅」徒歩2分
都営大江戸線「大門駅」徒歩2分

26階部分、西向き住戸!

【特徴・設備】
■全室窓あり
■家具の配置がしやすい間取り
■システムキッチン
■3口ガスコンロ
■収納豊富
■独立洗面台
■室内洗濯置き場あり
■アフターサービス保証付

2冠達成 恵比寿不動産は物件数No.1 中古マンション数No.1

ワールドタワーレジデンス 26階の
購入に関するお問い合わせはこちらから

contact us

恵比寿不動産までお気軽にお問い合わせください

お電話でのお問い合わせはこちら:03-6421-0543 10:00 - 19:00 (水曜定休)
恵比寿不動産店舗情報渋谷区東3-25-11 TOKYU REIT恵比寿ビル4階
オフィス内観写真
オフィス外観写真
リフォーム無料お見積りサービス

物件概要

物件名 ワールドタワーレジデンス
所在地
交通
問合せ番号 12513-26F
物件特徴 タワーマンション、大規模マンション
物件条件 -
価格 39,000 管理費 44,220円/月
修繕積立金 13,090円/月 その他費用 -
間取り 2LDK 方角 西
専有面積 60.26m2 バルコニー面積 15.89m2
建物構造 RC 築年月 2024年11月
総戸数 389戸 総階数 地上46階 地下2階
駐車場 月額48,000円~56,000円 バイク置き場 あり
駐輪場 あり 土地権利 所有権
用途地域 商業地域  管理形態 日勤管理
管理会社 鹿島建物総合管理(株) 分譲会社 世界貿易センタービルディング
施工会社 鹿島建設 設計会社 鹿島建設
取引態様 仲介 小学校学区 御成門小学校
周辺情報 ■まいばすけっと芝大門2丁目店(スーパー)まで約2分
■ファミリーマート浜松町駅南店(コンビニ)まで約1分
■ミネドラッグクレアタワー店(ドラッグストア)まで約3分
現況 空室 入居/引渡時期 即時
更新日 2026年4月29日

備考

部屋設備

  • バス・トイレ別
  • 独立洗面台
  • 追い焚き
  • 温水洗浄便座
  • 浴室乾燥機
  • システムキッチン
  • 食器洗浄機
  • 浄水器
  • ガスコンロ
  • エアコン
  • シューズインクローゼット
  • フローリング

建物設備

  • エレベーター
  • オートロック
  • TVドアホン
  • 駐車場
  • バイク置き場
  • 駐輪場
  • ラウンジ
  • フロントサービス
  • フィットネス
  • ゲストルーム
  • パーティールーム
  • 各階ゴミ置き場
  • 内廊下
  • 防犯カメラ

ワールドタワーレジデンス 26階のローンシミュレーション

借入金額
39,000
頭金
0万円
毎月の返済額
頭金
  • 支払い額万円※半角数字
金利
  • %※半角数字
返済年数
  • ※元利均等返済方式、最大優遇の場合で計算しています。
  • ※融資には個別審査があり、審査結果により、貸出条件(金利・貸出期間・借入額)が異なる場合がございます。
  • ※不動産のご購入に際しましては物件価格以外にその他諸費用が必要となります。
    諸費用に関する詳細につきましてはお問い合わせ下さいませ。

周辺地図

※建物周辺情報はGoogleMapを使用しており、実際とは若干異なる場合がございます。

掲載情報について

  • ※本掲載情報と現況に差異がある場合、現況を優先いたします。
  • ※掲載物件は売却済あるいは売出中止となる場合もあります。
  • ※掲載写真やパース(絵)、または間取図に描かれている家具や車などは、価格に含まれておりません。また、過去に撮影したものをそのまま利用している場合があり、名称・外観・背景等、実際のものとは異なる場合がございます。予めご了承ください。
  • ※仲介物件には所定の仲介手数料(消費税等相当額を含みます)が必要です。
2冠達成 恵比寿不動産は物件数No.1 中古マンション数No.1

ワールドタワーレジデンス 26階の
購入に関するお問い合わせはこちらから

contact us

恵比寿不動産までお気軽にお問い合わせください

お電話でのお問い合わせはこちら:03-6421-0543 10:00 - 19:00 (水曜定休)
恵比寿不動産店舗情報渋谷区東3-25-11 TOKYU REIT恵比寿ビル4階
オフィス内観写真
オフィス外観写真

部屋一覧

売出し待ちお知らせ希望 未公開情報の確認 お問い合わせ
所在階 間取り 専有面積 価格 お気に入り お問い合わせ 詳細
15F 1LDK 40.30m2 17,500
お問い合わせ
詳細を見る
18F
リノベ
2LDK
56.68m2 34,200
お問い合わせ
詳細を見る
22F 1LDK 44.14m2 2800
お問い合わせ
詳細を見る
22F 2LDK 53.37m2 26,300
お問い合わせ
詳細を見る
24F
リノベ
2LDK
70.74m2 39,800
お問い合わせ
詳細を見る
新着
26F
2LDK 60.26m2 39,000
お問い合わせ
詳細を見る
28F 1LDK 44.14m2 24,800
お問い合わせ
詳細を見る
42F
リノベ
1LDK
63.90m2 42,500
お問い合わせ
詳細を見る