27階部分、東向き住戸!ペット飼育可!
【特徴・設備】
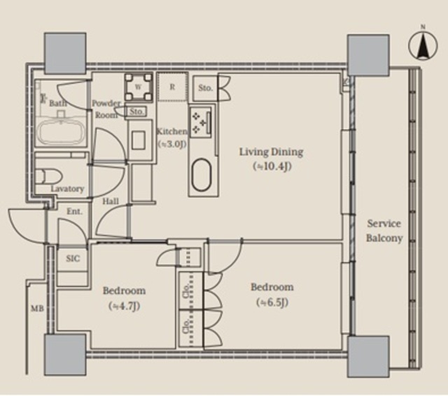
■全室窓あり
■家具の配置がしやすい間取り
■カウンターキッチン
■3口ガスコンロ
■SICがあり収納豊富
■独立洗面台
■室内洗濯置き場あり
■バス・トイレ別
■バルコニーあり
現在総賃料460,000円で賃貸中。表面利回りは3.68%で稼働中。
| 価格 | 1億4,980万円 |
毎月の返済額 (目安) |
|
|---|---|---|---|
| 築年月 | 2023年12月 | 間取り | 2LDK+SIC |
| 専有面積 | 55.48m2 | 所在階 | 27階 |
| 方角 | 東 | ||
| 所在地 | 神奈川県横浜市神奈川区鶴屋町1-41 | ||
| 交通 | JR東海道本線(東京~熱海)「横浜駅」徒歩4分 東急東横線「横浜駅」徒歩4分 |
||
【特徴・設備】
■全室窓あり
■家具の配置がしやすい間取り
■カウンターキッチン
■3口ガスコンロ
■SICがあり収納豊富
■独立洗面台
■室内洗濯置き場あり
■バス・トイレ別
■バルコニーあり
現在総賃料460,000円で賃貸中。表面利回りは3.68%で稼働中。

| 物件名 | THE YOKOHAMA FRONT TOWER | ||
|---|---|---|---|
| 所在地 | 神奈川県横浜市神奈川区鶴屋町1-41 | ||
| 交通 |
JR東海道本線(東京~熱海)「横浜駅」徒歩4分 東急東横線「横浜駅」徒歩4分 |
||
| 問合せ番号 | 12810-27F | ||
| 物件特徴 | タワーマンション、大規模マンション | ||
| 物件条件 | ペット可 | ||
| 価格 | 1億4,980万円 | 管理費 | 27,440円/月 |
| 修繕積立金 | 6,500円/月 | その他費用 | インターネット利用料 月額1,210円 |
| 間取り | 2LDK | 方角 | 東 |
| 専有面積 | 55.48m2 | バルコニー面積 | 13.5m2 |
| 建物構造 | RC | 築年月 | 2023年12月 |
| 総戸数 | 459戸 | 総階数 | 地上43階 地下2階 |
| 駐車場 | 月額49,000~96,000円 | バイク置き場 | 月額4,500~8,000円 |
| 駐輪場 | 月額400~1,000円 | 土地権利 | 所有権 |
| 用途地域 | 商業地域 | 管理形態 | 日勤管理 |
| 管理会社 | 相鉄リビングサポート | 分譲会社 | 相鉄不動産株式会社・東急株式会社 |
| 施工会社 | 株式会社大林組 | 設計会社 | - |
| 取引態様 | 仲介 | 小学校学区 | - |
| 周辺情報 | ■スーパー文化堂シァル横浜アネックス店(スーパー)まで約1分 ■ファミリーマート 鶴屋町店(コンビニ)まで約1分 ■横浜フロント薬局(ドラッグストア)まで約1分 |
||
| 現況 | 空室 | 入居/引渡時期 | 相談 |
| 更新日 | 2026年2月3日 | ||
| 頭金 |
|
|---|---|
| 金利 |
|
| 返済年数 | 年 |
※建物周辺情報はGoogleMapを使用しており、実際とは若干異なる場合がございます。
掲載情報について

8,980万円
画像準備中