都営三田線芝公園駅から徒歩3分!通勤やお出かけにも快適な住環境!
【特徴・設備】
■完全リフォーム済
■全室窓あり
■二面採光
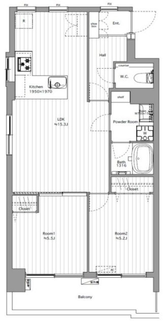
■家具の配置がしやすい間取り
■L字型カウンターキッチン
■3口ガスコンロ
■収納あり
■独立洗面台
■室内洗濯置き場あり
| 価格 | ***万円 |
毎月の返済額 (目安) |
|
|---|---|---|---|
| 築年月 | 1977年10月 | 間取り | 2LDK |
| 専有面積 | 60.76m2 | 所在階 | 5階 |
| 方角 | - | ||
| 所在地 | 東京都港区芝2-5-8 | ||
| 交通 | 都営三田線「芝公園駅」徒歩3分 JR山手線「浜松町駅」徒歩8分 |
||
【特徴・設備】
■完全リフォーム済
■全室窓あり
■二面採光
■家具の配置がしやすい間取り
■L字型カウンターキッチン
■3口ガスコンロ
■収納あり
■独立洗面台
■室内洗濯置き場あり

| 物件名 | 芝パークサイドハイツ | ||
|---|---|---|---|
| 所在地 | 東京都港区芝2-5-8 | ||
| 交通 |
都営三田線「芝公園駅」徒歩3分 JR山手線「浜松町駅」徒歩8分 都営大江戸線「大門駅」徒歩8分 都営三田線「三田駅」徒歩9分 都営大江戸線「赤羽橋駅」徒歩10分 |
||
| 問合せ番号 | 1296-501 | ||
| 物件特徴 | - | ||
| 物件条件 | - | ||
| 価格 | ***万円 | 管理費 | ***円/月 |
| 修繕積立金 | ***円/月 | その他費用 | *** |
| 間取り | 2LDK | 方角 | - |
| 専有面積 | 60.76m2 | バルコニー面積 | - |
| 建物構造 | SRC | 築年月 | 1977年10月 |
| 総戸数 | 78戸 | 総階数 | 地上13階 |
| 駐車場 | 38,000円/月額 | バイク置き場 | - |
| 駐輪場 | - | 土地権利 | 所有権 |
| 用途地域 | 近隣商業地域、商業地域 | 管理形態 | 日勤管理 |
| 管理会社 | 安藤ハザマ興業㈱ | 分譲会社 | 安藤建設 |
| 施工会社 | 安藤建設 | 設計会社 | - |
| 取引態様 | 仲介 | 小学校学区 | 芝小学校 |
| 周辺情報 | ■まいばすけっと 芝2丁目店(スーパー)まで約2分 ■ファミリーマート 芝二丁目店(コンビニ)まで約1分 ■ミネドラッグ 浜松町クレアタワー店(ドラッグストア)まで約7分 |
||
| 現況 | 成約済 | 入居/引渡時期 | *** |
| 更新日 | 2025年9月22日 | ||
※建物周辺情報はGoogleMapを使用しており、実際とは若干異なる場合がございます。
掲載情報について

室内写真 物件画像1