1階部分、南向き住戸!リフォーム物件!
【特徴・設備】
■ペット飼育可
■全室窓あり
■家具の配置がしやすい間取り
■システムキッチン
■3口ガスコンロ
■収納豊富
■独立洗面台
■室内洗濯置き場あり
【リフォーム内容】※2025年7月末完了
□給湯器交換
□システムキッチン交換
□ユニットバス交換
□全室クロス貼替
□全フローリング張替
□間取り変更
□ハウスクリーニング
□全建具交換
□トイレ交換
□洗面台交換 等
| 価格 | ***万円 |
毎月の返済額 (目安) |
|
|---|---|---|---|
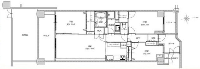
| 築年月 | 1998年11月 | 間取り | 3LDK+WIC |
| 専有面積 | 72.28m2 | 所在階 | 1階 |
| 方角 | 南 | ||
| 所在地 | 神奈川県横浜市港北区大曽根3丁目13-2 | ||
| 交通 | 東急東横線「綱島駅」徒歩12分 | ||
【特徴・設備】
■ペット飼育可
■全室窓あり
■家具の配置がしやすい間取り
■システムキッチン
■3口ガスコンロ
■収納豊富
■独立洗面台
■室内洗濯置き場あり
【リフォーム内容】※2025年7月末完了
□給湯器交換
□システムキッチン交換
□ユニットバス交換
□全室クロス貼替
□全フローリング張替
□間取り変更
□ハウスクリーニング
□全建具交換
□トイレ交換
□洗面台交換 等

| 物件名 | ガーデンズ綱島スカイウイング | ||
|---|---|---|---|
| 所在地 | 神奈川県横浜市港北区大曽根3丁目13-2 | ||
| 交通 |
東急東横線「綱島駅」徒歩12分 |
||
| 問合せ番号 | 12988-114 | ||
| 物件特徴 | 大規模マンション | ||
| 物件条件 | ペット可 | ||
| 価格 | ***万円 | 管理費 | ***円/月 |
| 修繕積立金 | ***円/月 | その他費用 | *** |
| 間取り | 3LDK | 方角 | 南 |
| 専有面積 | 72.28m2 | バルコニー面積 | - |
| 建物構造 | RC | 築年月 | 1998年11月 |
| 総戸数 | 239戸 | 総階数 | 地上7階 |
| 駐車場 | 月額14,000円 | バイク置き場 | あり |
| 駐輪場 | 無償 | 土地権利 | 所有権 |
| 用途地域 | 第一種低層住居専用地域 | 管理形態 | 日勤管理 |
| 管理会社 | 三井不動産レジデンシャルサービス(株) | 分譲会社 | 三井不動産、三菱地所 |
| 施工会社 | 大林組 | 設計会社 | - |
| 取引態様 | 仲介 | 小学校学区 | - |
| 周辺情報 | ■生活クラブつなしまデポー(スーパー)まで約5分 ■ファミリーマート樽町二丁目店(コンビニ)まで約6分 ■綱島中央薬局(ドラッグストア)まで約5分 |
||
| 現況 | 成約済 | 入居/引渡時期 | *** |
| 更新日 | 2025年10月23日 | ||
※建物周辺情報はGoogleMapを使用しており、実際とは若干異なる場合がございます。
掲載情報について

外観 物件画像1