40階部分のプレミアム住戸/みなとみらい・富士山を望む眺望/地上41階・総戸数390戸の制震構造タワーレジデンス
【特徴・設備】
■折上天井高 約2,850mm、明るく開放感のある空間
■1822サイズのバスルーム
■家事時短にうれしい食器洗い機・ディスポーザー付きシステムキッチン
■キッチン背面には収納豊富なカップボード
■Miele製のビルトイン洗濯乾燥機
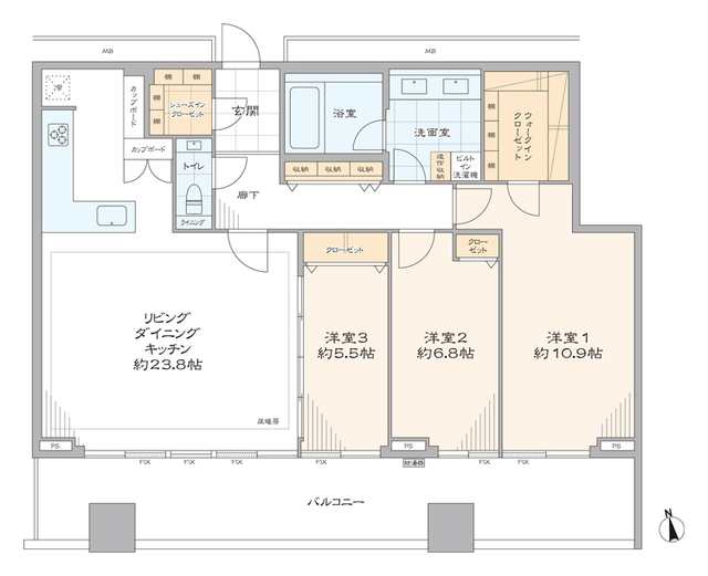
■リビングに隣接した洋室3はテレワークや読書など落ち着いた時間を過ごすのにもぴったりなお部屋
■高級感ある内廊下設計
■高速エレベーターを採用
■コンシェルジュサービス/24時間有人管理
■床・天井スラブ厚370mm/ 二重床・二重天井
■『横浜』駅徒歩5分。住宅棟・商業棟・業務棟が一体となった共用施設が充実した大規模タワーマンション
【リノベーション内容】※2025年4月完了
□フローリング新規貼替
□建具新規交換
□田中工藝製洗面化粧台新規交換
□TOTO製洗浄便座付トイレ新規交換
□床暖房マット新規交換
□壁・天井クロス新規貼替
□照明器具新規設置
□エアコン四基新規交換
□給湯器新規交換(追焚式)
□ディスポーザー新規交換
□田中工藝製システムキッチン新規交換(食器洗い機付)…等
