パークシティ高田馬場 8階 成約済みの部屋 13300-8F

  • 総合トップ
  • 中古マンション
  • 一戸建て・土地
  • 投資・収益物件
  • 売りたい[売却査定]
  • 貸したい[賃料査定]

パークシティ高田馬場 成約済み物件 (13300-8F)

こちらのお部屋は既に成約済みです。

お手数ですが、建物詳細ページより同マンションで売り出し中の別のお部屋をご覧いただくか、
物件検索より最新の物件をお探しください。

価格
***
毎月の返済額
(目安)
loansimulationIcon
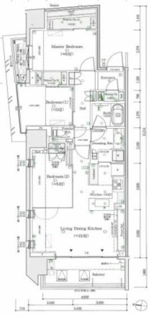
築年月 2025年6月 間取り 3LDK+SIC+WIC
専有面積 78.78m2 所在階 8階
方角 -
所在地 東京都新宿区高田馬場4-29-27
交通 JR山手線「高田馬場駅」徒歩7分
東京メトロ東西線「高田馬場駅」徒歩7分

8階部分、西向き角部屋!

【特徴・設備】
■全室窓あり
■家具の配置がしやすい間取り
■L字型カウンターキッチン
■3口ガスコンロ
■収納豊富
■室内洗濯置き場あり

2冠達成 恵比寿不動産は物件数No.1 中古マンション数No.1

物件概要

物件名 パークシティ高田馬場
所在地
交通
問合せ番号 13300-8F
物件特徴 大規模マンション
物件条件 -
価格 *** 管理費 ***円/月
修繕積立金 ***円/月 その他費用 ***
間取り 3LDK 方角 -
専有面積 78.78m2 バルコニー面積 -
建物構造 RC 築年月 2025年6月
総戸数 325戸 総階数 地上13階 地下1階
駐車場 あり バイク置き場 あり
駐輪場 あり 土地権利 所有権
用途地域 近隣商業地域 管理形態 日勤管理
管理会社 三井不動産レジデンシャルサービス(株) 分譲会社 三井不動産レジデンシャル
施工会社 佐藤工業 設計会社 -
取引態様 仲介 小学校学区 戸塚第三小学校
周辺情報 ■マルエツプチ高田馬場店(スーパー)まで約2分
■セブンイレブン高田馬場店(コンビニ)まで約3分
■マツモトキヨシ高田馬場4丁目店(ドラッグストア)まで約3分
現況 成約済 入居/引渡時期 ***
更新日 2026年3月5日

備考

部屋設備

  • バス・トイレ別
  • 独立洗面台
  • 追い焚き
  • 温水洗浄便座
  • 浴室乾燥機
  • システムキッチン
  • カウンターキッチン
  • 食器洗浄機
  • 浄水器
  • エアコン
  • シューズインクローゼット
  • ウォークインクローゼット
  • フローリング
  • 角部屋
  • リノベーション

建物設備

  • エレベーター
  • オートロック
  • 宅配ボックス
  • TVドアホン
  • 駐車場
  • バイク置き場
  • 駐輪場
  • 防犯カメラ
  • インターネット

周辺地図

※建物周辺情報はGoogleMapを使用しており、実際とは若干異なる場合がございます。

掲載情報について

  • ※本掲載情報と現況に差異がある場合、現況を優先いたします。
  • ※掲載物件は売却済あるいは売出中止となる場合もあります。
  • ※掲載写真やパース(絵)、または間取図に描かれている家具や車などは、価格に含まれておりません。また、過去に撮影したものをそのまま利用している場合があり、名称・外観・背景等、実際のものとは異なる場合がございます。予めご了承ください。
  • ※仲介物件には所定の仲介手数料(消費税等相当額を含みます)が必要です。
2冠達成 恵比寿不動産は物件数No.1 中古マンション数No.1

部屋一覧

売出し待ちお知らせ希望 未公開情報の確認 お問い合わせ
所在階 間取り 専有面積 価格 お気に入り お問い合わせ 詳細
4F
リノベ
2LDK
64.86m2 13,980
お問い合わせ
詳細を見る
4F 1LDK 36.28m2 8,000
お問い合わせ
詳細を見る
5F 1LDK 36.28m2 7,980
お問い合わせ
詳細を見る
7F 2LDK 55.03m2 15,500
お問い合わせ
詳細を見る
7F 3LDK 64.83m2 16,800
お問い合わせ
詳細を見る
9F
リノベ
3LDK
71.90m2 23,000
お問い合わせ
詳細を見る

最近見た物件

画像準備中

東京八重洲アムフラット 8階

***

  • 東京都中央区新川2-12-11
  • 東京メトロ日比谷線「八丁堀駅」徒歩4分
    東京メトロ東西線「茅場町駅」徒歩8分
  • 2LDK  56.06m2
ファミール明大前おすすめ画像

ファミール明大前 1階

7,499

  • 東京都世田谷区松原1-35-21
  • 京王線「明大前駅」徒歩1分
    東急世田谷線「下高井戸駅」徒歩12分
  • 1LDK  50.49m2
画像準備中

ネクサス巣鴨 4階

***

  • 東京都豊島区巣鴨3-13-10
  • JR山手線「大塚駅」徒歩8分
    JR山手線「巣鴨駅」徒歩10分
  • 2LDK  48.72m2
画像準備中

樋口ハイツ 6階

***

  • 東京都墨田区千歳3-17-5
  • 都営新宿線「森下駅」徒歩5分
    都営大江戸線「森下駅」徒歩5分
  • 4K  75.82m2
パークコート浜離宮ザタワーおすすめ画像

パークコート浜離宮ザタワー 32階

***

  • 東京都港区浜松町1-3-2
  • JR京浜東北線「浜松町駅」徒歩5分
    都営大江戸線「大門駅」徒歩6分
  • 3LDK  84.71m2
東陽町ハイホームA棟おすすめ画像

東陽町ハイホームA棟 1階

***

  • 東京都江東区東陽4-7-10
  • 東京メトロ東西線「東陽町駅」徒歩5分
    東京メトロ東西線「木場駅」徒歩16分
  • 1LDK  50.22m2