1階部分、北西向き住戸!新規内装フルリフォーム物件!
【特徴・設備】
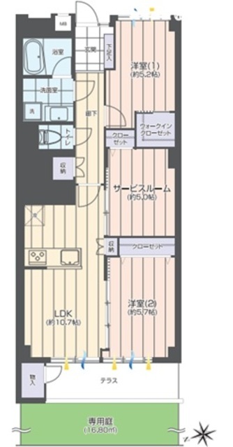
■LDK・洋室1・2は窓あり
■家具の配置がしやすい間取り
■カウンターキッチン
■WICがあり収納豊富
■独立洗面台
■室内洗濯置き場あり
■アフターサービス保証付
【新規内装フルリフォーム内容】※2025年4月25日完了
□給排水管新規配管
□システムキッチン
□ユニットバス
□洗面化粧台
□フロアタイル
□遮音性フローリング
□エアコン先行配管
□TVモニター付インターホン
□トイレ
□分電盤
□建具・下足入
□全室クロス
□給湯器
□ハウスクリーニング 等
