令和3年築×JR・私鉄各線『横浜』駅まで徒歩約9分の好立地
【特徴・設備】
■2021年10月築の築浅物件
■地上7階建て3階部分です
■ペット飼育可(飼育細則あり)
■広々バルコニー全部屋に面しています
■料理をしながら会話ができる対面キッチン
■室内とても丁寧に使われています
■ウォークインクローゼットなど収納充実
| 価格 | ***万円 |
毎月の返済額 (目安) |
|
|---|---|---|---|
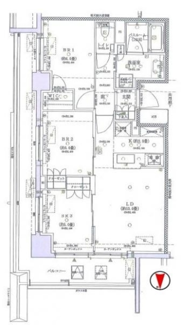
| 築年月 | 2021年10月 | 間取り | 3LDK+WIC |
| 専有面積 | 64.08m2 | 所在階 | 3階 |
| 方角 | 北 | ||
| 所在地 | 神奈川県横浜市神奈川区台町14-23 | ||
| 交通 | JR京浜東北線「横浜駅」徒歩9分 京急本線「神奈川駅」徒歩11分 |
||
【特徴・設備】
■2021年10月築の築浅物件
■地上7階建て3階部分です
■ペット飼育可(飼育細則あり)
■広々バルコニー全部屋に面しています
■料理をしながら会話ができる対面キッチン
■室内とても丁寧に使われています
■ウォークインクローゼットなど収納充実

| 物件名 | オープンレジデンシア横浜台町 | ||
|---|---|---|---|
| 所在地 | 神奈川県横浜市神奈川区台町14-23 | ||
| 交通 |
JR京浜東北線「横浜駅」徒歩9分 京急本線「神奈川駅」徒歩11分 東急東横線「反町駅」徒歩13分 |
||
| 問合せ番号 | 13401-3F | ||
| 物件特徴 | - | ||
| 物件条件 | ペット可 | ||
| 価格 | ***万円 | 管理費 | ***円/月 |
| 修繕積立金 | ***円/月 | その他費用 | *** |
| 間取り | 3LDK | 方角 | 北 |
| 専有面積 | 64.08m2 | バルコニー面積 | 20.25m2 |
| 建物構造 | RC | 築年月 | 2021年10月 |
| 総戸数 | 33戸 | 総階数 | 地上7階 |
| 駐車場 | 月額29,000円~36,000円 | バイク置き場 | - |
| 駐輪場 | 有 | 土地権利 | 所有権 |
| 用途地域 | 第一種住居地域、近隣商業地域 | 管理形態 | 日勤管理 |
| 管理会社 | 日本ハウズイング株式会社 | 分譲会社 | オープンハウス・ディベロップメント |
| 施工会社 | 風越建設株式会社 | 設計会社 | - |
| 取引態様 | 仲介 | 小学校学区 | - |
| 周辺情報 | ■横浜市立青木小学校/約970m ■横浜市立栗田谷中学校/約1,200m ■まいばすけっと/約80m ■ファミリーマート/約130m ■横浜モアーズ/約700m ■沢渡中央公園/約40m |
||
| 現況 | 成約済 | 入居/引渡時期 | *** |
| 更新日 | 2025年8月26日 | ||
※建物周辺情報はGoogleMapを使用しており、実際とは若干異なる場合がございます。
掲載情報について

1億8,500万円
室内写真 物件画像1