駅前再開発タワーマン/エリア最⾼層/25階部分・南向き部屋・⽇当たり良好
【特徴・設備】
■キッチンは瀟洒なオープン型カウンター付キッチン
■エコカラット配したリビング・主寝室は約6.6帖
■浴室はゆとりある1317サイズ、浴室換気乾燥機付
■ペット相談(細則有)
■フロントサービス
■常時ゴミ出し可能
■免震構造
■天井高2.5M以上
■二重床・二重天井
■24時間換気システム
| 価格 | ***万円 |
毎月の返済額 (目安) |
|
|---|---|---|---|
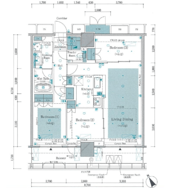
| 築年月 | 2024年9月 | 間取り | 3LDK |
| 専有面積 | 77.49m2 | 所在階 | 25階 |
| 方角 | 南西 | ||
| 所在地 | 東京都北区上十条2-27-1 | ||
| 交通 | JR埼京線「十条駅」徒歩1分 JR京浜東北線「東十条駅」徒歩9分 |
||
【特徴・設備】
■キッチンは瀟洒なオープン型カウンター付キッチン
■エコカラット配したリビング・主寝室は約6.6帖
■浴室はゆとりある1317サイズ、浴室換気乾燥機付
■ペット相談(細則有)
■フロントサービス
■常時ゴミ出し可能
■免震構造
■天井高2.5M以上
■二重床・二重天井
■24時間換気システム

| 物件名 | ザ・タワー十条(J& TERRACE) | ||
|---|---|---|---|
| 所在地 | 東京都北区上十条2-27-1 | ||
| 交通 |
JR埼京線「十条駅」徒歩1分 JR京浜東北線「東十条駅」徒歩9分 |
||
| 問合せ番号 | 13693-2507 | ||
| 物件特徴 | タワーマンション、大規模マンション | ||
| 物件条件 | - | ||
| 価格 | ***万円 | 管理費 | ***円/月 |
| 修繕積立金 | ***円/月 | その他費用 | *** |
| 間取り | 3LDK | 方角 | 南西 |
| 専有面積 | 77.49m2 | バルコニー面積 | 14.69m2 |
| 建物構造 | SRC | 築年月 | 2024年9月 |
| 総戸数 | 578戸 | 総階数 | 地上39階 地下2階 |
| 駐車場 | 月額31,000円 | バイク置き場 | 空要確認 |
| 駐輪場 | 空要確認 | 土地権利 | 所有権 |
| 用途地域 | 商業地域 | 管理形態 | 日勤管理 |
| 管理会社 | 株式会社日鉄コミュニティ | 分譲会社 | 東急不動産株式会社/日鉄興和不動産株式会社 |
| 施工会社 | 前田建設工業株式会社東京建築支店 | 設計会社 | - |
| 取引態様 | 仲介 | 小学校学区 | - |
| 周辺情報 | ■ニューデイズ十条……………………徒歩4 分(265m) ■ローソン十条駅西口店………………徒歩4 分(292m) ■ファミリーマート北区十条西口店…徒歩5 分(328m) ■スーパーみらべる十条店……………徒歩6 分(431m) ■マツモトキヨシ十条銀座店…………徒歩4 分(271m) ■十条仲原郵便局………………………徒歩7 分(521m) ■十条公園………………………………徒歩6 分(457m) |
||
| 現況 | 成約済 | 入居/引渡時期 | *** |
| 更新日 | 2025年9月18日 | ||
※建物周辺情報はGoogleMapを使用しており、実際とは若干異なる場合がございます。
掲載情報について

室内写真 物件画像1