ザ・タワー十条(J& TERRACE) 25階

  • 総合トップ
  • 中古マンション
  • 一戸建て・土地
  • 投資・収益物件
  • 売りたい[売却査定]
  • 貸したい[賃料査定]

ザ・タワー十条(J& TERRACE) 25階
新着

価格
17,500
毎月の返済額
(目安)
loansimulationIcon
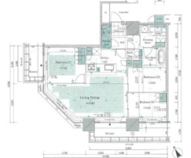
築年月 2024年9月 間取り 3LDK
専有面積 83.03m2 所在階 25階
方角 南西
所在地 東京都北区上十条2-27-1
交通 JR埼京線「十条駅」徒歩1分
JR京浜東北線「東十条駅」徒歩9分

25階部分、南西向き住戸!ペット飼育可!

【特徴・設備】
■全室窓あり
■家具の配置がしやすい間取り
■カウンターキッチン
■3口ガスコンロ
■ディスポーザー
■床暖房完備
■収納豊富
■ミストサウナ
■独立洗面台
■室内洗濯置き場あり
■二重天井・二重床

2冠達成 恵比寿不動産は物件数No.1 中古マンション数No.1

ザ・タワー十条(J& TERRACE) 25階の
購入に関するお問い合わせはこちらから

contact us

恵比寿不動産までお気軽にお問い合わせください

お電話でのお問い合わせはこちら:03-6421-0543 10:00 - 19:00 (水曜定休)
恵比寿不動産店舗情報渋谷区東3-25-11 TOKYU REIT恵比寿ビル4階
オフィス内観写真
オフィス外観写真
リフォーム無料お見積りサービス

物件概要

物件名 ザ・タワー十条(J& TERRACE)
所在地
交通
問合せ番号 13693-2509
物件特徴 タワーマンション、大規模マンション
物件条件 -
価格 17,500 管理費 29,800円/月
修繕積立金 8,300円/月 その他費用 -
間取り 3LDK 方角 南西
専有面積 83.03m2 バルコニー面積 17.3m2
建物構造 SRC 築年月 2024年9月
総戸数 578戸 総階数 地上39階 地下2階
駐車場 月額31,000円 バイク置き場 空要確認
駐輪場 空要確認 土地権利 所有権
用途地域 商業地域  管理形態 日勤管理
管理会社 株式会社日鉄コミュニティ 分譲会社 東急不動産株式会社/日鉄興和不動産株式会社
施工会社 前田建設工業株式会社東京建築支店 設計会社 -
取引態様 仲介 小学校学区 -
周辺情報 ■ニューデイズ十条……………………徒歩4 分(265m)
■ローソン十条駅西口店………………徒歩4 分(292m)
■ファミリーマート北区十条西口店…徒歩5 分(328m)
■スーパーみらべる十条店……………徒歩6 分(431m)
■マツモトキヨシ十条銀座店…………徒歩4 分(271m)
■十条仲原郵便局………………………徒歩7 分(521m)
■十条公園………………………………徒歩6 分(457m)
現況 空室 入居/引渡時期 即時
更新日 2025年12月23日

備考

部屋設備

  • バス・トイレ別
  • 独立洗面台
  • 追い焚き
  • 温水洗浄便座
  • 浴室乾燥機
  • システムキッチン
  • カウンターキッチン
  • ディスポーザー
  • 食器洗浄機
  • 浄水器
  • ガスコンロ
  • 床暖房
  • エアコン
  • フローリング
  • 南向き

建物設備

  • エレベーター
  • オートロック
  • 宅配ボックス
  • TVドアホン
  • 駐車場
  • バイク置き場
  • 駐輪場
  • ラウンジ
  • キッズルーム
  • フロントサービス
  • ゲストルーム
  • 24時間ゴミ出し可
  • 内廊下
  • 防犯カメラ
  • インターネット

ザ・タワー十条(J& TERRACE) 25階のローンシミュレーション

借入金額
17,500
頭金
0万円
毎月の返済額
頭金
  • 支払い額万円※半角数字
金利
  • %※半角数字
返済年数
  • ※元利均等返済方式、最大優遇の場合で計算しています。
  • ※融資には個別審査があり、審査結果により、貸出条件(金利・貸出期間・借入額)が異なる場合がございます。
  • ※不動産のご購入に際しましては物件価格以外にその他諸費用が必要となります。
    諸費用に関する詳細につきましてはお問い合わせ下さいませ。

周辺地図

※建物周辺情報はGoogleMapを使用しており、実際とは若干異なる場合がございます。

掲載情報について

  • ※本掲載情報と現況に差異がある場合、現況を優先いたします。
  • ※掲載物件は売却済あるいは売出中止となる場合もあります。
  • ※掲載写真やパース(絵)、または間取図に描かれている家具や車などは、価格に含まれておりません。また、過去に撮影したものをそのまま利用している場合があり、名称・外観・背景等、実際のものとは異なる場合がございます。予めご了承ください。
  • ※仲介物件には所定の仲介手数料(消費税等相当額を含みます)が必要です。
2冠達成 恵比寿不動産は物件数No.1 中古マンション数No.1

ザ・タワー十条(J& TERRACE) 25階の
購入に関するお問い合わせはこちらから

contact us

恵比寿不動産までお気軽にお問い合わせください

お電話でのお問い合わせはこちら:03-6421-0543 10:00 - 19:00 (水曜定休)
恵比寿不動産店舗情報渋谷区東3-25-11 TOKYU REIT恵比寿ビル4階
オフィス内観写真
オフィス外観写真

部屋一覧

売出し待ちお知らせ希望 未公開情報の確認 お問い合わせ
所在階 間取り 専有面積 価格 お気に入り お問い合わせ 詳細
新着
6F
3LDK 70.64m2 11,800
お問い合わせ
詳細を見る
15F 3LDK 77.38m2 15,500
お問い合わせ
詳細を見る
新着
25F
3LDK 77.49m2 14,500
お問い合わせ
詳細を見る
新着
25F
3LDK 83.03m2 17,500
お問い合わせ
詳細を見る
30F
リノベ
3LDK
72.02m2 13,900
お問い合わせ
詳細を見る
36F 3LDK 78.87m2 15,980
お問い合わせ
詳細を見る
39F
リノベ
3LDK
93.77m2 28,800
お問い合わせ
詳細を見る

最近見た物件

センターハイツ梅ヶ丘おすすめ画像

センターハイツ梅ヶ丘 6階

14,990

  • 東京都世田谷区若林5-24-15
  • 東急世田谷線「若林駅」徒歩11分
  • 3LDK  117.60m2
ザ・タワー十条(J&  TERRACE)おすすめ画像

ザ・タワー十条(J& TERRACE) 25階

14,500

  • 東京都北区上十条2-27-1
  • JR埼京線「十条駅」徒歩1分
    JR京浜東北線「東十条駅」徒歩9分
  • 3LDK  77.49m2
シャリエ上井草おすすめ画像

シャリエ上井草 2階

7,480

  • 東京都杉並区上井草4-13-15
  • 西武新宿線「上井草駅」徒歩13分
    西武新宿線「上石神井駅」徒歩14分
  • 4LDK  86.87m2
ライオンズ千代田三崎町おすすめ画像

ライオンズ千代田三崎町 13階

8,498

  • 東京都千代田区神田三崎町3-5-6
  • JR中央・総武線「水道橋駅」徒歩3分
    東京メトロ半蔵門線「九段下駅」徒歩8分
  • 1LDK  38.96m2