最上階、南西向き角部屋!アクセス良好!
【特徴・設備】
■全室窓あり
■二面採光
■家具の配置がしやすい間取り
■システムキッチン
■収納あり
■和室あり
■独立洗面台
■室内洗濯置き場あり
■バス・トイレ別
■バルコニーあり
現在総賃料195,000円で賃貸中。表面利回りは2.93%で稼働中。
| 価格 | ***万円 |
毎月の返済額 (目安) |
|
|---|---|---|---|
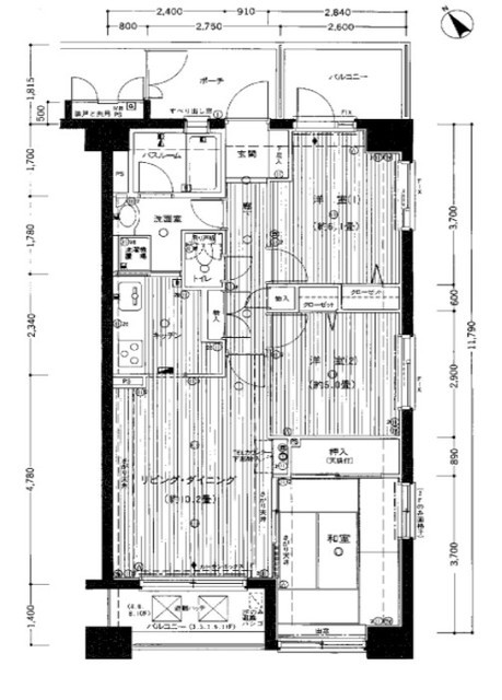
| 築年月 | 1997年2月 | 間取り | 3LDK |
| 専有面積 | 68.52m2 | 所在階 | 11階 |
| 方角 | 南西 | ||
| 所在地 | 神奈川県横浜市西区南幸2丁目20-15 | ||
| 交通 | JR東海道本線(東京~熱海)「横浜駅」徒歩8分 JR京浜東北線「横浜駅」徒歩8分 |
||
【特徴・設備】
■全室窓あり
■二面採光
■家具の配置がしやすい間取り
■システムキッチン
■収納あり
■和室あり
■独立洗面台
■室内洗濯置き場あり
■バス・トイレ別
■バルコニーあり
現在総賃料195,000円で賃貸中。表面利回りは2.93%で稼働中。

| 物件名 | クリオ横浜壱番館 | ||
|---|---|---|---|
| 所在地 | 神奈川県横浜市西区南幸2丁目20-15 | ||
| 交通 |
JR東海道本線(東京~熱海)「横浜駅」徒歩8分 JR京浜東北線「横浜駅」徒歩8分 JR横須賀線「横浜駅」徒歩8分 東急東横線「横浜駅」徒歩8分 京急本線「横浜駅」徒歩8分 |
||
| 問合せ番号 | 14155-11F | ||
| 物件特徴 | - | ||
| 物件条件 | SOHO・事務所可 | ||
| 価格 | ***万円 | 管理費 | ***円/月 |
| 修繕積立金 | ***円/月 | その他費用 | *** |
| 間取り | 3LDK | 方角 | 南西 |
| 専有面積 | 68.52m2 | バルコニー面積 | - |
| 建物構造 | SRC | 築年月 | 1997年2月 |
| 総戸数 | 62戸 | 総階数 | 地上11階 |
| 駐車場 | 月額20,000円~27,000円 | バイク置き場 | - |
| 駐輪場 | - | 土地権利 | 所有権 |
| 用途地域 | 商業地域 | 管理形態 | 日勤管理 |
| 管理会社 | 明和地所コミュニティ | 分譲会社 | 明和地所 |
| 施工会社 | 長谷工コーポレーション、 福田組 | 設計会社 | - |
| 取引態様 | 仲介 | 小学校学区 | - |
| 周辺情報 | ■まいばすけっと横浜駅西店(スーパー)まで約1分 ■ローソンヨコハマパルナード店(コンビニ)まで約1分 ■秋本薬局横浜西口2号店(ドラッグストア)まで約1分 |
||
| 現況 | 成約済 | 入居/引渡時期 | *** |
| 更新日 | 2026年1月8日 | ||
※建物周辺情報はGoogleMapを使用しており、実際とは若干異なる場合がございます。
掲載情報について

外観 物件画像1