13階部分、西向き住戸!ペット飼育可!
【特徴・設備】
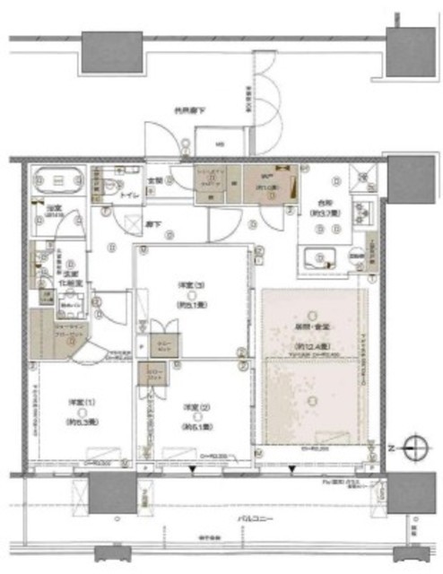
■LDK・洋室1・2は窓あり
■家具の配置がしやすい間取り
■L字型カウンターキッチン
■3口ガスコンロ
■WICがあり収納豊富
■独立洗面台
■室内洗濯置き場あり
| 価格 | 1億5,000万円 |
毎月の返済額 (目安) |
|
|---|---|---|---|
| 築年月 | 2014年11月 | 間取り | 3LDK+SIC+WIC |
| 専有面積 | 72.71m2 | 所在階 | 13階 |
| 方角 | 西 | ||
| 所在地 | 神奈川県川崎市中原区小杉町3-1501-2 | ||
| 交通 | 東急東横線「武蔵小杉駅」徒歩4分 東急目黒線「武蔵小杉駅」徒歩4分 |
||
【特徴・設備】
■LDK・洋室1・2は窓あり
■家具の配置がしやすい間取り
■L字型カウンターキッチン
■3口ガスコンロ
■WICがあり収納豊富
■独立洗面台
■室内洗濯置き場あり

| 物件名 | プラウドタワー武蔵小杉 | ||
|---|---|---|---|
| 所在地 | 神奈川県川崎市中原区小杉町3-1501-2 | ||
| 交通 |
東急東横線「武蔵小杉駅」徒歩4分 東急目黒線「武蔵小杉駅」徒歩4分 東急東横線「新丸子駅」徒歩11分 東急目黒線「新丸子駅」徒歩11分 |
||
| 問合せ番号 | 14712-13F | ||
| 物件特徴 | タワーマンション、大規模マンション | ||
| 物件条件 | ペット可 | ||
| 価格 | 1億5,000万円 | 管理費 | 31,140円/月 |
| 修繕積立金 | 28,440円/月 | その他費用 | 200円/月 |
| 間取り | 3LDK | 方角 | 西 |
| 専有面積 | 72.71m2 | バルコニー面積 | 18.62m2 |
| 建物構造 | RC | 築年月 | 2014年11月 |
| 総戸数 | 450戸 | 総階数 | 地上45階 地下1階 |
| 駐車場 | 月額15,000円~18,000円 | バイク置き場 | 月額500円/台、長さ2,100mm×幅850mm |
| 駐輪場 | 上段:月額100円/台、下段:月額200円/台 | 土地権利 | 所有権 |
| 用途地域 | 商業地域 | 管理形態 | 日勤管理 |
| 管理会社 | 野村不動産パートナーズ株式会社 | 分譲会社 | 野村不動産、相鉄不動産 |
| 施工会社 | 清水建設株式会社 | 設計会社 | - |
| 取引態様 | 仲介 | 小学校学区 | - |
| 周辺情報 | ■イトーヨーカドー武蔵小杉駅前店(スーパー)まで徒歩 2分 ■ビオセボン 武蔵小杉店(スーパー)まで徒歩 2分 ■ミニストップ 武蔵小杉店(コンビニ)まで徒歩 1分 ■薬マツモトキヨシ 武蔵小杉駅北口店(ドラッグストア)まで徒歩 3分 |
||
| 現況 | 居住中 | 入居/引渡時期 | 相談 |
| 更新日 | 2026年2月20日 | ||
| 頭金 |
|
|---|---|
| 金利 |
|
| 返済年数 | 年 |
※建物周辺情報はGoogleMapを使用しており、実際とは若干異なる場合がございます。
掲載情報について

外観 物件画像1