東急東横線「新丸子」駅徒歩6分!三井不動産レジデンシャル(株)旧分譲マンション!三方角部屋の為、全居室採光有!
【特徴・設備】
■長期修繕計画有
■ペット飼育可(細則有)
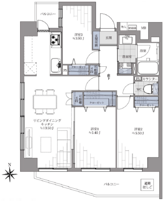
■ファミリーに最適な3LDKタイプ
■6階部分・南向き・角部屋、陽当り・眺望良好
■両面バルコニーにつき通風良好
■各居室にクローゼット
■エレベーター・オートロック・宅配ボックス
■外観タイル張り
【リフォーム内容】※2025年10月内装完了
□フローリング新規貼替
□ユニットバス新規交換
□洗面化粧台新規交換
□トイレ新規交換
□システムキッチン新規交換
□壁・天井クロス新規交換
□建具・玄関収納新規交換
□給湯器新規交換
□選択水栓・防水パン新規交換





