5階部分・南西向き・角住戸!114.32㎡・2SLDK!フルリノベーション!
【特徴・設備】
■京王線「初台」駅徒歩6分、「新宿」駅も徒歩圏内の好立地
■2013年大規模修繕工事など定期的に必要な修繕を実施しているマンションです。
■「ミッドセンチュリー」をテーマにした内装デザイン。
■ヴィンテージの名作家具やアートを飾ればギャラリーのような雰囲気も演出できます。
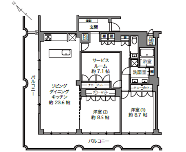
■採光面が多く開放的な雰囲気のあるリビング。
■全部屋ダブルベッドを入れられるゆとりのある洋室。
■2ボウルを備えた洗面台。
■空間を贅沢に使った間取りで、日々に余裕が生まれるよう設計しました。
■ペット飼育可(細則有)
■フルリノベーション(配管更新含)





