テラス加賀 14階

  • 総合トップ
  • 中古マンション
  • 一戸建て・土地
  • 投資・収益物件
  • 売りたい[売却査定]
  • 貸したい[賃料査定]

テラス加賀 14階

価格
11,980
毎月の返済額
(目安)
loansimulationIcon
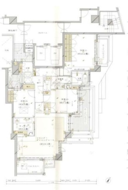
築年月 2000年3月 間取り 3LDK+WIC
専有面積 106.31m2 所在階 14階
方角 南東
所在地 東京都板橋区加賀1-15-6
交通 JR埼京線「十条駅」徒歩11分
都営三田線「板橋区役所前駅」徒歩12分

最上階、南西向き角部屋!専用ポーチ!

【特徴・設備】
■ペット飼育可
■全室窓あり
■二面採光
■家具の配置がしやすい間取り
■カウンターキッチン
■3口ガスコンロ
■収納豊富
■独立洗面台
■室内洗濯置き場あり

2冠達成 恵比寿不動産は物件数No.1 中古マンション数No.1

テラス加賀 14階の
購入に関するお問い合わせはこちらから

contact us

恵比寿不動産までお気軽にお問い合わせください

お電話でのお問い合わせはこちら:03-6421-0543 10:00 - 19:00 (水曜定休)
恵比寿不動産店舗情報渋谷区東3-25-11 TOKYU REIT恵比寿ビル4階
オフィス内観写真
オフィス外観写真
リフォーム無料お見積りサービス

物件概要

物件名 テラス加賀
所在地
交通
問合せ番号 15152-14F
物件特徴 大規模マンション
物件条件 ペット可
価格 11,980 管理費 14,800円/月
修繕積立金 26,600円/月 その他費用 -
間取り 3LDK 方角 南東
専有面積 106.31m2 バルコニー面積 6.3m2
建物構造 SRC 築年月 2000年3月
総戸数 109戸 総階数 地上14階 地下1階
駐車場 有 月額 16000~28,000円 バイク置き場 -
駐輪場 - 土地権利 所有権
用途地域 準工業地域 管理形態 日勤管理
管理会社 三菱地所コミュニティ株式会社 分譲会社 三菱商事(株)
施工会社 (株)大林組 設計会社 -
取引態様 仲介 小学校学区 -
周辺情報 ■まいばすけっと 板橋3丁目店(スーパー)まで徒歩 6分
■クイーンズ伊勢丹 十条店(スーパー)まで徒歩 7分
■セブンイレブン 板橋加賀2丁目店(コンビニ)まで徒歩 1分
■クオール薬局 ナチュラルローソン帝京大学付属病院店(売店)(ドラッグストア)まで徒歩 5分
現況 空室 入居/引渡時期 即時
更新日 2026年3月6日

備考

部屋設備

  • バス・トイレ別
  • 独立洗面台
  • 追い焚き
  • 温水洗浄便座
  • 浴室乾燥機
  • システムキッチン
  • カウンターキッチン
  • 食器洗浄機
  • 浄水器
  • ガスコンロ
  • 床暖房
  • エアコン
  • ウォークインクローゼット
  • フローリング
  • ルーフバルコニー
  • 最上階
  • 角部屋
  • 南向き
  • リノベーション

建物設備

  • エレベーター
  • オートロック
  • 宅配ボックス
  • 駐車場
  • ペット可

テラス加賀 14階のローンシミュレーション

借入金額
11,980
頭金
0万円
毎月の返済額
頭金
  • 支払い額万円※半角数字
金利
  • %※半角数字
返済年数
  • ※元利均等返済方式、最大優遇の場合で計算しています。
  • ※融資には個別審査があり、審査結果により、貸出条件(金利・貸出期間・借入額)が異なる場合がございます。
  • ※不動産のご購入に際しましては物件価格以外にその他諸費用が必要となります。
    諸費用に関する詳細につきましてはお問い合わせ下さいませ。

周辺地図

※建物周辺情報はGoogleMapを使用しており、実際とは若干異なる場合がございます。

掲載情報について

  • ※本掲載情報と現況に差異がある場合、現況を優先いたします。
  • ※掲載物件は売却済あるいは売出中止となる場合もあります。
  • ※掲載写真やパース(絵)、または間取図に描かれている家具や車などは、価格に含まれておりません。また、過去に撮影したものをそのまま利用している場合があり、名称・外観・背景等、実際のものとは異なる場合がございます。予めご了承ください。
  • ※仲介物件には所定の仲介手数料(消費税等相当額を含みます)が必要です。
2冠達成 恵比寿不動産は物件数No.1 中古マンション数No.1

テラス加賀 14階の
購入に関するお問い合わせはこちらから

contact us

恵比寿不動産までお気軽にお問い合わせください

お電話でのお問い合わせはこちら:03-6421-0543 10:00 - 19:00 (水曜定休)
恵比寿不動産店舗情報渋谷区東3-25-11 TOKYU REIT恵比寿ビル4階
オフィス内観写真
オフィス外観写真

部屋一覧

売出し待ちお知らせ希望 未公開情報の確認 お問い合わせ
所在階 間取り 専有面積 価格 お気に入り お問い合わせ 詳細
5F
リノベ
3LDK
81.46m2 9,680
お問い合わせ
詳細を見る
14F
リノベ
3LDK
106.31m2 11,980
お問い合わせ
詳細を見る