最上階、南西向き角部屋!専用ポーチ!
【特徴・設備】
■ペット飼育可
■全室窓あり
■二面採光
■家具の配置がしやすい間取り
■カウンターキッチン
■3口ガスコンロ
■収納豊富
■独立洗面台
■室内洗濯置き場あり
| 価格 | 1億1,980万円 |
毎月の返済額 (目安) |
|
|---|---|---|---|
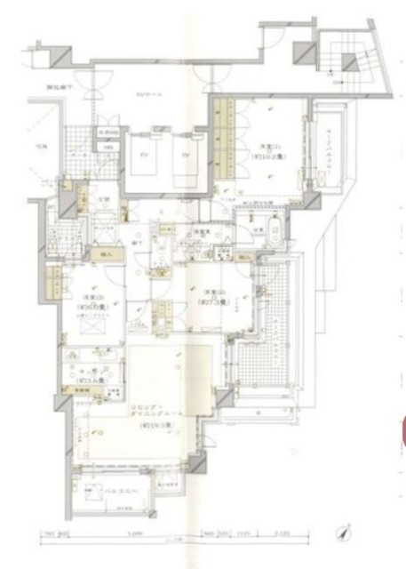
| 築年月 | 2000年3月 | 間取り | 3LDK+WIC |
| 専有面積 | 106.31m2 | 所在階 | 14階 |
| 方角 | 南東 | ||
| 所在地 | 東京都板橋区加賀1-15-6 | ||
| 交通 | JR埼京線「十条駅」徒歩11分 都営三田線「板橋区役所前駅」徒歩12分 |
||
【特徴・設備】
■ペット飼育可
■全室窓あり
■二面採光
■家具の配置がしやすい間取り
■カウンターキッチン
■3口ガスコンロ
■収納豊富
■独立洗面台
■室内洗濯置き場あり

| 物件名 | テラス加賀 | ||
|---|---|---|---|
| 所在地 | 東京都板橋区加賀1-15-6 | ||
| 交通 |
JR埼京線「十条駅」徒歩11分 都営三田線「板橋区役所前駅」徒歩12分 都営三田線「新板橋駅」徒歩14分 |
||
| 問合せ番号 | 15152-14 F | ||
| 物件特徴 | 大規模マンション | ||
| 物件条件 | ペット可 | ||
| 価格 | 1億1,980万円 | 管理費 | 14,800円/月 |
| 修繕積立金 | 26,600円/月 | その他費用 | - |
| 間取り | 3LDK | 方角 | 南東 |
| 専有面積 | 106.31m2 | バルコニー面積 | 6.3m2 |
| 建物構造 | SRC | 築年月 | 2000年3月 |
| 総戸数 | 109戸 | 総階数 | 地上14階 地下1階 |
| 駐車場 | 有 月額 16000~28,000円 | バイク置き場 | - |
| 駐輪場 | - | 土地権利 | 所有権 |
| 用途地域 | 準工業地域 | 管理形態 | 日勤管理 |
| 管理会社 | 三菱地所コミュニティ株式会社 | 分譲会社 | 三菱商事(株) |
| 施工会社 | (株)大林組 | 設計会社 | - |
| 取引態様 | 仲介 | 小学校学区 | - |
| 周辺情報 | ■まいばすけっと 板橋3丁目店(スーパー)まで徒歩 6分 ■クイーンズ伊勢丹 十条店(スーパー)まで徒歩 7分 ■セブンイレブン 板橋加賀2丁目店(コンビニ)まで徒歩 1分 ■クオール薬局 ナチュラルローソン帝京大学付属病院店(売店)(ドラッグストア)まで徒歩 5分 |
||
| 現況 | 空室 | 入居/引渡時期 | 即時 |
| 更新日 | 2026年4月18日 | ||
| 頭金 |
|
|---|---|
| 金利 |
|
| 返済年数 | 年 |
※建物周辺情報はGoogleMapを使用しており、実際とは若干異なる場合がございます。
掲載情報について

外観 物件画像1