新築・未入居・角部屋・最上階!
【特徴・設備】
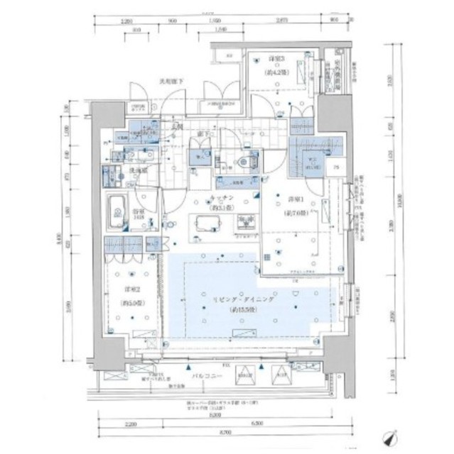
■LDK・洋室1は窓あり
■二面採光
■家具の配置がしやすい間取り
■カウンターキッチン
■3口ガスコンロ
■WIC・SICがあり収納豊富
■独立洗面台
■室内洗濯置き場あり
| 価格 | 3億5,000万円 |
毎月の返済額 (目安) |
|
|---|---|---|---|
| 築年月 | 2025年10月 | 間取り | 3LDK+SIC+WIC |
| 専有面積 | 80.71m2 | 所在階 | 12階 |
| 方角 | 南東 | ||
| 所在地 | 東京都中央区日本橋人形町2-31-13 | ||
| 交通 | 東京メトロ日比谷線「人形町駅」徒歩4分 都営浅草線「人形町駅」徒歩4分 |
||
【特徴・設備】
■LDK・洋室1は窓あり
■二面採光
■家具の配置がしやすい間取り
■カウンターキッチン
■3口ガスコンロ
■WIC・SICがあり収納豊富
■独立洗面台
■室内洗濯置き場あり

| 物件名 | ザ・パークワンズ日本橋人形町 | ||
|---|---|---|---|
| 所在地 | 東京都中央区日本橋人形町2-31-13 | ||
| 交通 |
東京メトロ日比谷線「人形町駅」徒歩4分 都営浅草線「人形町駅」徒歩4分 東京メトロ半蔵門線「水天宮前駅」徒歩5分 都営新宿線「浜町駅」徒歩5分 JR総武本線「馬喰町駅」徒歩14分 |
||
| 問合せ番号 | 15242-1203 | ||
| 物件特徴 | - | ||
| 物件条件 | - | ||
| 価格 | 3億5,000万円 | 管理費 | 14,000円/月 |
| 修繕積立金 | 3,510円/月 | その他費用 | 3,080円/月 |
| 間取り | 3LDK | 方角 | 南東 |
| 専有面積 | 80.71m2 | バルコニー面積 | 9.6m2 |
| 建物構造 | RC | 築年月 | 2025年10月 |
| 総戸数 | 78戸 | 総階数 | 地上12階 |
| 駐車場 | 有 | バイク置き場 | - |
| 駐輪場 | - | 土地権利 | 所有権 |
| 用途地域 | 商業地域 | 管理形態 | 巡回管理 |
| 管理会社 | - | 分譲会社 | 三菱地所レジデンス(株)・東京建物(株) |
| 施工会社 | (株)森本組 | 設計会社 | (株)ジャイロアーキテクツ |
| 取引態様 | 仲介 | 小学校学区 | 久松小学校 |
| 周辺情報 | ■全日食チェーン 中央わしや(スーパー)まで徒歩 2分 ■マルエツ プチ 人形町駅前店(スーパー)まで徒歩 2分 ■セブンイレブン 日本橋人形町2丁目店(コンビニ)まで徒歩 2分 ■セイムス調剤薬局 人形町店(ドラッグストア)まで徒歩 2分 |
||
| 現況 | 空室 | 入居/引渡時期 | 即時 |
| 更新日 | 2025年12月26日 | ||
| 頭金 |
|
|---|---|
| 金利 |
|
| 返済年数 | 年 |
※建物周辺情報はGoogleMapを使用しており、実際とは若干異なる場合がございます。
掲載情報について

外観 物件画像1