プラウド成城 3階

  • 総合トップ
  • 中古マンション
  • 一戸建て・土地
  • 投資・収益物件
  • 売りたい[売却査定]
  • 貸したい[賃料査定]

プラウド成城 3階
新着

価格
12,990
毎月の返済額
(目安)
loansimulationIcon
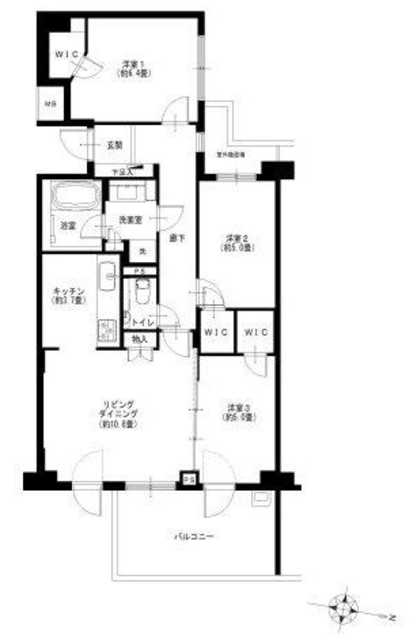
築年月 2005年3月 間取り 3LDK+WIC
専有面積 74.26m2 所在階 3階
方角
所在地 東京都世田谷区祖師谷3-17-22
交通 小田急線「成城学園前駅」徒歩9分
小田急線「祖師ヶ谷大蔵駅」徒歩8分

リノベーション済・ペット可・3LDK+3WIC

【特徴・設備】
■ファミリーに最適な3LDKタイプ
■リビングダイニングに床暖房設置
■生ごみの処理の手間を減らすディスポーザー
■各居室にウォークインクローゼット
■トランクルーム/専用使用権付き(0.66㎡※無償)
■ペット飼育可(細則有)
■ペット足洗い場あり
■バルコニーに便利なスロップシンク
■インナーサッシ既存(LDK・洋室1.2)

【リノベーション内容】※2025年9月完了
□システムキッチン交換
□ユニットバス交換
□洗面台交換
□トイレ交換
□全室クロス張替
□全フローリング張替
□セラミックタイル張替
□全建具交換
□品川区下足入れ交換
□洗濯水栓器具交換
□防水パン交換
□スイッチパネル設置
□ダウンライト設置
□照明器具設置
□玄関人感センサー設置
□天井カセット型エアコン(LDK)
□床暖房(温水パネル交換)

2冠達成 恵比寿不動産は物件数No.1 中古マンション数No.1

プラウド成城 3階の
購入に関するお問い合わせはこちらから

contact us

恵比寿不動産までお気軽にお問い合わせください

お電話でのお問い合わせはこちら:03-6421-0543 10:00 - 19:00 (水曜定休)
恵比寿不動産店舗情報渋谷区東3-25-11 TOKYU REIT恵比寿ビル4階
オフィス内観写真
オフィス外観写真
リフォーム無料お見積りサービス

物件概要

物件名 プラウド成城
所在地
交通
問合せ番号 15251-323
物件特徴 大規模マンション
物件条件 ペット可
価格 12,990 管理費 13,500円/月
修繕積立金 22,390円/月 その他費用 -
間取り 3LDK 方角
専有面積 74.26m2 バルコニー面積 11.27m2
建物構造 RC 築年月 2005年3月
総戸数 129戸 総階数 地上5階 
駐車場 有 月額25,000円~30,000円 バイク置き場 有 月額1,000円
駐輪場 有 月額200円 土地権利 所有権
用途地域 第一種低層住居専用地域 管理形態 日勤管理
管理会社 野村不動産パートナーズ株式会社 分譲会社 野村不動産(株)、オリックス・リアル エステート(株)
施工会社 (株)竹中工務店 設計会社 (株)竹中工務店東京1級建築事務所
取引態様 仲介 小学校学区 祖師谷小学校
周辺情報 ■ファミリーマート 成城学園前店 630m
■まいばすけっと 祖師谷3丁目店 500m
■成城石井 成城店 690m
■Odakyu OX(小田急OX) 成城店 740m
■成城CORTY(コルティ) 740m
■世田谷区立砧図書館 350m
■成城幼稚園 80m
■世田谷区立祖師谷小学校 180m
■祖師谷三丁目公園 250m
現況 空室 入居/引渡時期 相談
更新日 2025年12月15日

備考

※住民活動協力金(月額2,025円※非居住者)

部屋設備

  • バス・トイレ別
  • 独立洗面台
  • 追い焚き
  • 浴室乾燥機
  • システムキッチン
  • ディスポーザー
  • 食器洗浄機
  • 浄水器
  • ガスコンロ
  • 床暖房
  • エアコン
  • ウォークインクローゼット
  • フローリング
  • リノベーション

建物設備

  • エレベーター
  • オートロック
  • 宅配ボックス
  • TVドアホン
  • トランクルーム
  • ペット足洗い場
  • 駐車場
  • バイク置き場
  • 駐輪場
  • 防犯カメラ
  • BS
  • CS
  • CATV
  • インターネット
  • ペット可

プラウド成城 3階のローンシミュレーション

借入金額
12,990
頭金
0万円
毎月の返済額
頭金
  • 支払い額万円※半角数字
金利
  • %※半角数字
返済年数
  • ※元利均等返済方式、最大優遇の場合で計算しています。
  • ※融資には個別審査があり、審査結果により、貸出条件(金利・貸出期間・借入額)が異なる場合がございます。
  • ※不動産のご購入に際しましては物件価格以外にその他諸費用が必要となります。
    諸費用に関する詳細につきましてはお問い合わせ下さいませ。

周辺地図

※建物周辺情報はGoogleMapを使用しており、実際とは若干異なる場合がございます。

掲載情報について

  • ※本掲載情報と現況に差異がある場合、現況を優先いたします。
  • ※掲載物件は売却済あるいは売出中止となる場合もあります。
  • ※掲載写真やパース(絵)、または間取図に描かれている家具や車などは、価格に含まれておりません。また、過去に撮影したものをそのまま利用している場合があり、名称・外観・背景等、実際のものとは異なる場合がございます。予めご了承ください。
  • ※仲介物件には所定の仲介手数料(消費税等相当額を含みます)が必要です。
2冠達成 恵比寿不動産は物件数No.1 中古マンション数No.1

プラウド成城 3階の
購入に関するお問い合わせはこちらから

contact us

恵比寿不動産までお気軽にお問い合わせください

お電話でのお問い合わせはこちら:03-6421-0543 10:00 - 19:00 (水曜定休)
恵比寿不動産店舗情報渋谷区東3-25-11 TOKYU REIT恵比寿ビル4階
オフィス内観写真
オフィス外観写真

部屋一覧

売出し待ちお知らせ希望 未公開情報の確認 お問い合わせ
所在階 間取り 専有面積 価格 お気に入り お問い合わせ 詳細
新着
3F
リノベ
3LDK
74.26m2 12,990
お問い合わせ
詳細を見る

最近見た物件

イニシア上池袋おすすめ画像

イニシア上池袋 5階

5,980

  • 東京都豊島区上池袋1-35-12
  • JR山手線「大塚駅」徒歩8分
    都電荒川線「巣鴨新田駅」徒歩4分
  • 1R  43.22m2
ワールドシティタワーズ アクアタワーおすすめ画像

ワールドシティタワーズ アクアタワー 30階

***

  • 東京都港区港南4-6-1
  • 東京モノレール「天王洲アイル駅」徒歩7分
    JR山手線「品川駅」徒歩14分
  • 2LDK  86.61m2
外観

サンドエル松原 8階

***

  • 東京都世田谷区松原1-56-19
  • 京王線「代田橋駅」徒歩4分
    京王線「明大前駅」徒歩8分
  • 2LDK  59.40m2
画像準備中

シルエタワーヨコハマ 11階

***

  • 神奈川県横浜市西区楠町7-1
  • JR東海道本線(東京~熱海)「横浜駅」徒歩10分
    JR京浜東北線「横浜駅」徒歩10分
  • 2SLDK  77.37m2
ウェルシャン第2池袋おすすめ画像

ウェルシャン第2池袋 2階

***

  • 東京都豊島区南池袋1-8-25
  • JR山手線「池袋駅」徒歩6分
    JR湘南新宿ライン「池袋駅」徒歩6分
  • 1LDK  45.48m2
画像準備中

ライオンズマンション荻窪第三 6階

***

  • 東京都杉並区荻窪5-21-26
  • JR中央・総武線「荻窪駅」徒歩4分
    東京メトロ丸ノ内線「荻窪駅」徒歩4分
  • 1SLDK  49.62m2