横浜駅まで徒歩圏の所有権の駐車場付き!最上階で眺望、日当たり良好!
【特徴・設備】
■ビッグターミナル「横浜」駅徒歩7分
■玄関、廊下は大理石タイル
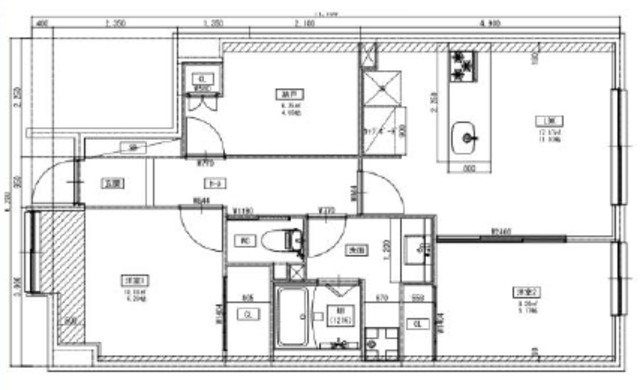
■ファミリーに最適な3LDK
■所有権の駐車場付き住戸(横幅2.3m・長さ5m可能)
■ハイルーフ車も可能、リングシャッター付で防犯面も安心な上、雨風からも愛車を守ります
■令和7年12月末リフォーム完成
【リフォーム内容】
□キッチン交換
□給湯器交換
□トイレ交換
□ユニットバス交換
□各所クローゼット設置
□フローリング張替
□照明取り付け・増設
□電気・ガス・木工事
□室内洗濯パン新設
□建具交換
□ハウスクリーニング
