4階建て最上階、エレベーター無し3階相当のお部屋!内装リフォーム物件!
【特徴・設備】
■「馬込駅」「西大井駅」徒歩8分の好立地
■長期修繕計画有り
■2019年大規模修繕工事
■不在時に便利な宅配ボックス
■陽当り・眺望良好
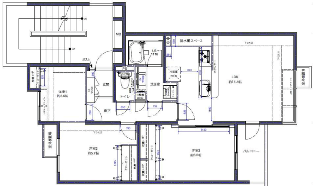
■家族の会話も弾む対面式キッチン
【リフォーム内容】※2026年2月中旬完了予定
□キッチン・ユニットバス・トイレ
□全室フローリング交換
□全室クロス張替
□水回りフロアタイル張替
□洗面台交換
□給排水管(専有部内)
| 価格 | 5,580万円 |
毎月の返済額 (目安) |
|
|---|---|---|---|
| 築年月 | 1983年1月 | 間取り | 3LDK |
| 専有面積 | 69.65m2 | 所在階 | 4階 |
| 方角 | 南 | ||
| 所在地 | 東京都品川区西大井5-6-31 | ||
| 交通 | 都営浅草線「馬込駅」徒歩8分 JR横須賀線「西大井駅」徒歩8分 |
||
【特徴・設備】
■「馬込駅」「西大井駅」徒歩8分の好立地
■長期修繕計画有り
■2019年大規模修繕工事
■不在時に便利な宅配ボックス
■陽当り・眺望良好
■家族の会話も弾む対面式キッチン
【リフォーム内容】※2026年2月中旬完了予定
□キッチン・ユニットバス・トイレ
□全室フローリング交換
□全室クロス張替
□水回りフロアタイル張替
□洗面台交換
□給排水管(専有部内)

| 物件名 | 馬込パークハイツ | ||
|---|---|---|---|
| 所在地 | 東京都品川区西大井5-6-31 | ||
| 交通 |
都営浅草線「馬込駅」徒歩8分 JR横須賀線「西大井駅」徒歩8分 JR湘南新宿ライン「西大井駅」徒歩8分 東急大井町線「中延駅」徒歩11分 東急大井町線「荏原町駅」徒歩13分 |
||
| 問合せ番号 | 15815-403 | ||
| 物件特徴 | - | ||
| 物件条件 | - | ||
| 価格 | 5,580万円 | 管理費 | 13,500円/月 |
| 修繕積立金 | 13,500円/月 | その他費用 | - |
| 間取り | 3LDK | 方角 | 南 |
| 専有面積 | 69.65m2 | バルコニー面積 | 3.92m2 |
| 建物構造 | RC | 築年月 | 1983年1月 |
| 総戸数 | 19戸 | 総階数 | 地上4階 |
| 駐車場 | 有(空無) | バイク置き場 | 無 |
| 駐輪場 | 有 月額 100円 | 土地権利 | 所有権 |
| 用途地域 | 第一種中高層住居専用地域 | 管理形態 | 巡回管理 |
| 管理会社 | 日本ハウズイング株式会社 | 分譲会社 | 東和土地建物株式会社 |
| 施工会社 | 東海興業 | 設計会社 | - |
| 取引態様 | 仲介 | 小学校学区 | 伊藤小学校 |
| 周辺情報 | ■まいばすけっと 西大井5丁目店(スーパー)まで徒歩 1分 ■セブンイレブン 西大井店(コンビニ)まで徒歩 4分 ■スギ薬局 二葉店(ドラッグストア)まで徒歩 5分 |
||
| 現況 | 空室 | 入居/引渡時期 | 相談 |
| 更新日 | 2026年2月23日 | ||
| 頭金 |
|
|---|---|
| 金利 |
|
| 返済年数 | 年 |
※建物周辺情報はGoogleMapを使用しており、実際とは若干異なる場合がございます。
掲載情報について

外観 物件画像1