7階部分・南向き・角部屋!風と太陽を感じられる邸宅!新規リノベーション済!
【特徴・設備】
■東武東上線「ときわ台」駅徒歩7分
■ペット飼育可能(飼育細則有)
■二重床・二重天井
■24時間ゴミ出し可能
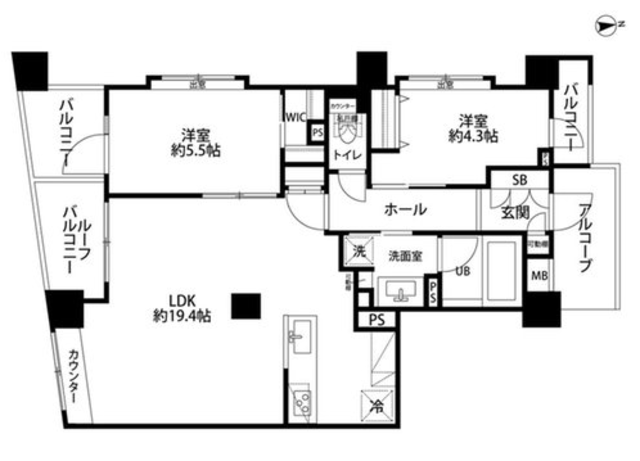
■各室バルコニーに面した明るいお部屋
■各居室に収納があり主寝室にWIC、リビング収納もあり収納充実
【リフォーム内容】※2026年2月完了
□浴室交換
□トイレ交換
□壁紙貼り替え
□キッチン交換
□フローリング張り替え
□建具交換
□洗面設備交換
□エコカラット施工
□防水パン交換・・・etc





