リノベーション物件!7階部分・南西向き、明るく開放感のあるお部屋♪
【特徴・設備】
■オートロック・防犯カメラ・宅配ボックス完備
■犬・猫2匹まで飼育可(細則あり)
■床暖房や1620サイズの浴室、食洗機など、ワンランク上の充実した設備
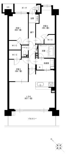
■3か所のウォークインクローゼットやトランクルームなど、豊富な収納スペースをご用意
■十条駅周辺には、スーパーやドラッグストア・商店街があり、お買い物に便利です
■プライバシー性の高い専用ポーチ付き
■バルコニーに便利なスロップシンク
■フラット35適合物件
■住宅ローン減税適合物件
■アフターサービス保証付き
【リノベーション内容】※2026年3月完了
□システムキッチン交換
□ユニットバス交換
□洗面台交換
□トイレ交換
□全室クロス張替
□全フローリング張替
□全建具交換
□フロアタイル張替(玄関)
□CF張替
□下足入れ交換
□洗濯水栓器具交換
□防水パン交換
□スイッチパネル設置
□ダウンライト設置
□照明器具設置
□玄関人感センサー設置





