3階部分、南・東・西の3方向角部屋につき陽当り・眺望良好!
【特徴・設備】
■閑静な高台の住宅街に立地
■室内大変キレイにお使いです
■全室窓あり
■システムキッチン
■3口ガスコンロ
■収納あり
■独立洗面台
■室内洗濯置き場あり
| 価格 | ***万円 |
毎月の返済額 (目安) |
|
|---|---|---|---|
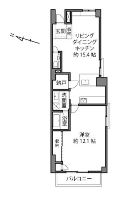
| 築年月 | 1982年3月 | 間取り | 1LDK |
| 専有面積 | 58.16m2 | 所在階 | 3階 |
| 方角 | 西 | ||
| 所在地 | 東京都目黒区目黒4-20-22 | ||
| 交通 | 東急東横線「祐天寺駅」徒歩13分 | ||
【特徴・設備】
■閑静な高台の住宅街に立地
■室内大変キレイにお使いです
■全室窓あり
■システムキッチン
■3口ガスコンロ
■収納あり
■独立洗面台
■室内洗濯置き場あり

| 物件名 | レジオン祐天寺 | ||
|---|---|---|---|
| 所在地 | 東京都目黒区目黒4-20-22 | ||
| 交通 |
東急東横線「祐天寺駅」徒歩13分 |
||
| 問合せ番号 | 4422-3F | ||
| 物件特徴 | 低層マンション | ||
| 物件条件 | - | ||
| 価格 | ***万円 | 管理費 | ***円/月 |
| 修繕積立金 | ***円/月 | その他費用 | *** |
| 間取り | 1LDK | 方角 | 西 |
| 専有面積 | 58.16m2 | バルコニー面積 | 3.94m2 |
| 建物構造 | RC | 築年月 | 1982年3月 |
| 総戸数 | 37戸 | 総階数 | 地上3階 |
| 駐車場 | 30,000円/月 | バイク置き場 | - |
| 駐輪場 | 2,000円/月 | 土地権利 | 所有権 |
| 用途地域 | 第一種低層住居専用地域 | 管理形態 | 常駐管理 |
| 管理会社 | 東急コミュニティー株式会社 | 分譲会社 | 日商岩井 |
| 施工会社 | 銭高組 | 設計会社 | - |
| 取引態様 | 仲介 | 小学校学区 | 油面小学校 |
| 周辺情報 | ■清水台東急ストア店(スーパー)まで約6分 ■セブンイレブン油面店(コンビニ)まで2分 ■イワサキ薬局(ドラッグストア)まで3分 |
||
| 現況 | 成約済 | 入居/引渡時期 | *** |
| 更新日 | 2023年12月14日 | ||
※建物周辺情報はGoogleMapを使用しており、実際とは若干異なる場合がございます。
掲載情報について

室内写真 物件画像1