3階部分、南東向き住戸!ペット飼育可!
【特徴・設備】
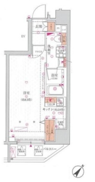
■洋室は窓あり
■家具の配置がしやすい間取り
■システムキッチン
■収納あり
■独立洗面台
■室内洗濯置き場あり
| 価格 | ***万円 |
毎月の返済額 (目安) |
|
|---|---|---|---|
| 築年月 | 2014年4月 | 間取り | 1R |
| 専有面積 | 26.39m2 | 所在階 | 3階 |
| 方角 | 南東 | ||
| 所在地 | 東京都目黒区中目黒4-7-4 | ||
| 交通 | 東急東横線「中目黒駅」徒歩12分 東京メトロ日比谷線「中目黒駅」徒歩12分 |
||
【特徴・設備】
■洋室は窓あり
■家具の配置がしやすい間取り
■システムキッチン
■収納あり
■独立洗面台
■室内洗濯置き場あり

| 物件名 | プレール・ドゥーク中目黒 | ||
|---|---|---|---|
| 所在地 | 東京都目黒区中目黒4-7-4 | ||
| 交通 |
東急東横線「中目黒駅」徒歩12分 東京メトロ日比谷線「中目黒駅」徒歩12分 |
||
| 問合せ番号 | 508-3F | ||
| 物件特徴 | デザイナーズ | ||
| 物件条件 | ペット可 | ||
| 価格 | ***万円 | 管理費 | ***円/月 |
| 修繕積立金 | ***円/月 | その他費用 | *** |
| 間取り | 1R | 方角 | 南東 |
| 専有面積 | 26.39m2 | バルコニー面積 | 3.34m2 |
| 建物構造 | RC | 築年月 | 2014年4月 |
| 総戸数 | 35戸 | 総階数 | 地上11階 地下1階 |
| 駐車場 | 25,000円~32,400円/月額 | バイク置き場 | 3,000円/月額 |
| 駐輪場 | 無償 | 土地権利 | 所有権 |
| 用途地域 | 第一種中高層住居専用地域 | 管理形態 | 巡回管理 |
| 管理会社 | 株式会社キノシタコミュニティ | 分譲会社 | 三栄建設株式会社・木下不動産株式会社 |
| 施工会社 | 沢建工業株式会社 | 設計会社 | - |
| 取引態様 | 仲介 | 小学校学区 | 田道小学校 |
| 周辺情報 | ■マルエツ目黒店(スーパー)まで約8分 ■セブンイレブン中目黒店(コンビニ)まで約2分 ■第三薬局(ドラックストア)まで約1分 |
||
| 現況 | 成約済 | 入居/引渡時期 | *** |
| 更新日 | 2025年9月23日 | ||
※建物周辺情報はGoogleMapを使用しており、実際とは若干異なる場合がございます。
掲載情報について

外観