ブリリアザタワー東京八重洲アベニュー 26階

  • 総合トップ
  • 中古マンション
  • 一戸建て・土地
  • 投資・収益物件
  • 売りたい[売却査定]
  • 貸したい[賃料査定]

ブリリアザタワー東京八重洲アベニュー 26階
新着

価格
29,990
毎月の返済額
(目安)
loansimulationIcon
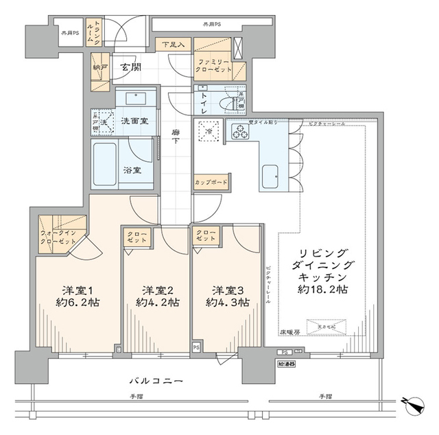
築年月 2017年10月 間取り 3LDK+WIC
専有面積 75.06m2 所在階 26階
方角 南西
所在地 東京都中央区新川2-10-1
交通 JR京葉線「八丁堀駅」徒歩2分
東京メトロ日比谷線「茅場町駅」徒歩9分

26階部分、南西向き住戸!リノベーション物件!

【特徴・設備】
■ペット飼育可
■全室窓あり
■家具の配置がしやすい間取り
■L字型カウンターキッチン
■3口ガスコンロ
■WICがあり収納豊富
■独立洗面台
■室内洗濯置き場あり
■アフターサービス保証付

【新規リノベーション内容】※2025年10月完了
□フローリング新規貼替
□壁・天井クロス新規貼替
□建具・玄関収納等新規交換
□田中工藝製洗面化粧台新規交換
□TOTO製洗浄便座付トイレ新規交換
□TOTO製ユニットバス新規交換(浴室換気乾燥機・ヘッドレスト・楽湯(肩湯・腰湯)・調光調色システム付)
□田中工藝製システムキッチン新規交換(食器洗い機付)
□照明器具新規設置
□エアコン一基新規設置
□床暖房マット新規設置(LD)
□給湯器新規交換(追焚式) 等

2冠達成 恵比寿不動産は物件数No.1 中古マンション数No.1

ブリリアザタワー東京八重洲アベニュー 26階の
購入に関するお問い合わせはこちらから

contact us

恵比寿不動産までお気軽にお問い合わせください

お電話でのお問い合わせはこちら:03-6421-0543 10:00 - 19:00 (水曜定休)
恵比寿不動産店舗情報渋谷区東3-25-11 TOKYU REIT恵比寿ビル4階
オフィス内観写真
オフィス外観写真
リフォーム無料お見積りサービス

物件概要

物件名 ブリリアザタワー東京八重洲アベニュー
所在地
交通
問合せ番号 5273-2612
物件特徴 タワーマンション、大規模マンション
物件条件 ペット可
価格 29,990 管理費 27,200円/月
修繕積立金 11,560円/月 その他費用 1,627円/月
間取り 3LDK 方角 南西
専有面積 75.06m2 バルコニー面積 15.9m2
建物構造 RC 築年月 2017年10月
総戸数 387戸 総階数 地上30階 
駐車場 37,000~42,000円/月 バイク置き場 2,000~3,000円/月
駐輪場 200~350円/月 土地権利 所有権
用途地域 商業地域  管理形態 日勤管理
管理会社 株式会社東京建物アメニティサポート 分譲会社 東京建物(株)・三菱地所レジデンス(株)
施工会社 三井住友建設(株) 設計会社 三井住友(株)
取引態様 仲介 小学校学区 明正小学校
周辺情報 -
現況 空室 入居/引渡時期 即時
更新日 2025年12月2日

備考

部屋設備

  • バス・トイレ別
  • 独立洗面台
  • 追い焚き
  • 温水洗浄便座
  • 浴室乾燥機
  • システムキッチン
  • カウンターキッチン
  • 食器洗浄機
  • 浄水器
  • ガスコンロ
  • 床暖房
  • エアコン
  • ウォークインクローゼット
  • フローリング
  • 南向き
  • リノベーション

建物設備

  • エレベーター
  • オートロック
  • 宅配ボックス
  • TVドアホン
  • トランクルーム
  • 駐車場
  • バイク置き場
  • 駐輪場
  • ラウンジ
  • キッズルーム
  • フロントサービス
  • ゲストルーム
  • パーティールーム
  • 24時間ゴミ出し可
  • 各階ゴミ置き場
  • 内廊下
  • 防犯カメラ
  • CATV
  • インターネット
  • 免震・制震
  • ペット可
  • フラット35S

ブリリアザタワー東京八重洲アベニュー 26階のローンシミュレーション

借入金額
29,990
頭金
0万円
毎月の返済額
頭金
  • 支払い額万円※半角数字
金利
  • %※半角数字
返済年数
  • ※元利均等返済方式、最大優遇の場合で計算しています。
  • ※融資には個別審査があり、審査結果により、貸出条件(金利・貸出期間・借入額)が異なる場合がございます。
  • ※不動産のご購入に際しましては物件価格以外にその他諸費用が必要となります。
    諸費用に関する詳細につきましてはお問い合わせ下さいませ。

周辺地図

※建物周辺情報はGoogleMapを使用しており、実際とは若干異なる場合がございます。

掲載情報について

  • ※本掲載情報と現況に差異がある場合、現況を優先いたします。
  • ※掲載物件は売却済あるいは売出中止となる場合もあります。
  • ※掲載写真やパース(絵)、または間取図に描かれている家具や車などは、価格に含まれておりません。また、過去に撮影したものをそのまま利用している場合があり、名称・外観・背景等、実際のものとは異なる場合がございます。予めご了承ください。
  • ※仲介物件には所定の仲介手数料(消費税等相当額を含みます)が必要です。
2冠達成 恵比寿不動産は物件数No.1 中古マンション数No.1

ブリリアザタワー東京八重洲アベニュー 26階の
購入に関するお問い合わせはこちらから

contact us

恵比寿不動産までお気軽にお問い合わせください

お電話でのお問い合わせはこちら:03-6421-0543 10:00 - 19:00 (水曜定休)
恵比寿不動産店舗情報渋谷区東3-25-11 TOKYU REIT恵比寿ビル4階
オフィス内観写真
オフィス外観写真

部屋一覧

売出し待ちお知らせ希望 未公開情報の確認 お問い合わせ
所在階 間取り 専有面積 価格 お気に入り お問い合わせ 詳細
新着
26F
リノベ
3LDK
75.06m2 29,990
お問い合わせ
詳細を見る

最近見た物件

GSハイム南青山おすすめ画像

GSハイム南青山 4階

44,990

  • 東京都港区南青山7-5-14
  • 東京メトロ銀座線「表参道駅」徒歩12分
    東京メトロ千代田線「表参道駅」徒歩12分
  • 4LDK  189.51m2
ウインザーハイム南砂おすすめ画像

ウインザーハイム南砂 3階

4,498

  • 東京都江東区南砂1-5-30
  • 東京メトロ半蔵門線「住吉駅」徒歩15分
    都営新宿線「住吉駅」徒歩15分
  • 3LDK  67.49m2
パークコート虎ノ門愛宕タワーおすすめ画像

パークコート虎ノ門愛宕タワー 29階

46,990

  • 東京都港区虎ノ門3-14-1
  • 東京メトロ日比谷線「神谷町駅」徒歩4分
    都営三田線「御成門駅」徒歩9分
  • 3LDK  94.18m2
レフィーズ大塚おすすめ画像

レフィーズ大塚 6階

9,480

  • 東京都豊島区西巣鴨1-8-3
  • JR山手線「大塚駅」徒歩9分
    都電荒川線「巣鴨新田駅」徒歩5分
  • 2LDK  66.84m2
オープンレジデンシア築地おすすめ画像

オープンレジデンシア築地 8階

7,500

  • 東京都中央区築地2-10-1
  • 東京メトロ日比谷線「築地駅」徒歩1分
    東京メトロ有楽町線「新富町駅」徒歩2分
  • 1LDK  38.38m2
ブランズ麻布狸穴町おすすめ画像

ブランズ麻布狸穴町 2階

28,490

  • 東京都港区麻布狸穴町44-1
  • 都営大江戸線「麻布十番駅」徒歩6分
    都営大江戸線「赤羽橋駅」徒歩9分
  • 2LDK  65.09m2