4方向角部屋!リノベーション物件!
【特徴・設備】
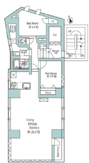
■ペット飼育可
■26.5帖LDK
■1フロア1住戸
■4面採光あり
■カウンターキッチン
■全居室窓あり
■収納有
■食洗器完備
【リノベーション内容】令和元年8月完了
□電気温水器新規
□ウォシュレット付トイレ新規
□壁紙新規張替え
□室内洗濯置き場防水パン新規
□化粧洗面台新規
□3口コンロシステムキッチン新規
□浴室乾燥機完備
□TVモニター付インターホン新規
□ユニットバス新規
□TOTO1318ユニットバス新規
□床フローリング新規
□リビングエアコン新規
□下駄箱・照明器具新規
□クリナップW2150システムキッチン
□スケルトンリフォーム済
□リクシルW900洗面台新規
