7階部分、西向き住戸!リノベーション物件!
【特徴・設備】
■ペット飼育可
■全室窓あり
■家具の配置がしやすい間取り
■カウンターキッチン
■3口ガスコンロ
■WICがあり収納豊富
■独立洗面台
■室内洗濯置き場あり
■アフターサービス保証付
| 価格 | 8,880万円 |
毎月の返済額 (目安) |
|
|---|---|---|---|
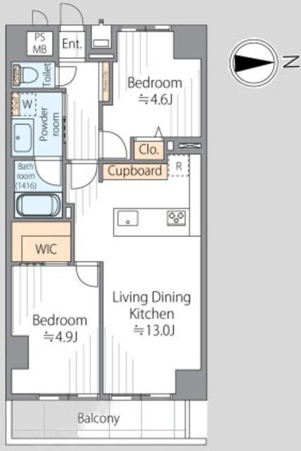
| 築年月 | 1980年3月 | 間取り | 2LDK+WIC |
| 専有面積 | 56.56m2 | 所在階 | 7階 |
| 方角 | 東 | ||
| 所在地 | 東京都中央区日本橋蛎殻町1-39-7 | ||
| 交通 | 東京メトロ半蔵門線「水天宮前駅」徒歩1分 東京メトロ日比谷線「人形町駅」徒歩3分 |
||
【特徴・設備】
■ペット飼育可
■全室窓あり
■家具の配置がしやすい間取り
■カウンターキッチン
■3口ガスコンロ
■WICがあり収納豊富
■独立洗面台
■室内洗濯置き場あり
■アフターサービス保証付

| 物件名 | ハイツ水天宮前 | ||
|---|---|---|---|
| 所在地 | 東京都中央区日本橋蛎殻町1-39-7 | ||
| 交通 |
東京メトロ半蔵門線「水天宮前駅」徒歩1分 東京メトロ日比谷線「人形町駅」徒歩3分 都営浅草線「人形町駅」徒歩3分 東京メトロ日比谷線「茅場町駅」徒歩9分 都営新宿線「浜町駅」徒歩10分 |
||
| 問合せ番号 | 5936-702 | ||
| 物件特徴 | ヴィンテージ | ||
| 物件条件 | ペット可 | ||
| 価格 | 8,880万円 | 管理費 | 14,360円/月 |
| 修繕積立金 | 19,760円/月 | その他費用 | - |
| 間取り | 2LDK | 方角 | 東 |
| 専有面積 | 56.56m2 | バルコニー面積 | 6.12m2 |
| 建物構造 | SRC | 築年月 | 1980年3月 |
| 総戸数 | 49戸 | 総階数 | 地上10階 |
| 駐車場 | - | バイク置き場 | 1,000円/月 |
| 駐輪場 | 500円/月 | 土地権利 | 所有権 |
| 用途地域 | 商業地域 | 管理形態 | 日勤管理 |
| 管理会社 | 日本ハウズインク株式会社 | 分譲会社 | 三井鉱山土地建物株式会社 |
| 施工会社 | 三井建設株式会社東京建築支店 | 設計会社 | - |
| 取引態様 | 仲介 | 小学校学区 | 有馬小学校 |
| 周辺情報 | ■まいばすけっと日本橋蛎殻町店(スーパー)まで約1分 ■セブンイレブン水天宮前店(コンビニ)まで約1分 ■ホリベ薬局人形町店(ドラックストア)まで約1分 |
||
| 現況 | 空室 | 入居/引渡時期 | 即時 |
| 更新日 | 2026年4月26日 | ||
| 頭金 |
|
|---|---|
| 金利 |
|
| 返済年数 | 年 |
※建物周辺情報はGoogleMapを使用しており、実際とは若干異なる場合がございます。
掲載情報について

外観