4階部分、南向き住戸!フルリノベーション物件!
【特徴・設備】
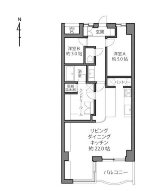
■ペット飼育可
■LDK・洋室1は窓あり
■家具の配置がしやすい間取り
■システムキッチン
■3口IHクッキングヒーター
■収納豊富
■独立洗面台
■室内洗濯置き場あり
| 価格 | ***万円 |
毎月の返済額 (目安) |
|
|---|---|---|---|
| 築年月 | 1981年10月 | 間取り | 2LDK |
| 専有面積 | 75.60m2 | 所在階 | 4階 |
| 方角 | 南 | ||
| 所在地 | 東京都世田谷区深沢1-8-4 | ||
| 交通 | 東急東横線「自由が丘駅」徒歩16分 | ||
【特徴・設備】
■ペット飼育可
■LDK・洋室1は窓あり
■家具の配置がしやすい間取り
■システムキッチン
■3口IHクッキングヒーター
■収納豊富
■独立洗面台
■室内洗濯置き場あり

| 物件名 | パシフィックニュー自由が丘 | ||
|---|---|---|---|
| 所在地 | 東京都世田谷区深沢1-8-4 | ||
| 交通 |
東急東横線「自由が丘駅」徒歩16分 |
||
| 問合せ番号 | 7488-4F | ||
| 物件特徴 | - | ||
| 物件条件 | ペット可 | ||
| 価格 | ***万円 | 管理費 | ***円/月 |
| 修繕積立金 | ***円/月 | その他費用 | *** |
| 間取り | 2LDK | 方角 | 南 |
| 専有面積 | 75.60m2 | バルコニー面積 | 5.38m2 |
| 建物構造 | RC | 築年月 | 1981年10月 |
| 総戸数 | 52戸 | 総階数 | 地上7階 |
| 駐車場 | - | バイク置き場 | - |
| 駐輪場 | 無料(※シール代300円) | 土地権利 | 所有権 |
| 用途地域 | 第一種低層住居専用地域、第一種住居地域 | 管理形態 | 日勤管理 |
| 管理会社 | 太平洋興発株式会社 | 分譲会社 | 太平洋興発 |
| 施工会社 | 三井建設 | 設計会社 | - |
| 取引態様 | 仲介 | 小学校学区 | 東深沢小学校 |
| 周辺情報 | ■西友 深沢店(スーパー)まで1分 ■ローソン・スリーエフ 世田谷産能大学前店(コンビニ)まで2分 ■クリエイトSD(エス・ディー) 目黒八雲店(ドラッグストア)まで4分 |
||
| 現況 | 成約済 | 入居/引渡時期 | *** |
| 更新日 | 2025年10月23日 | ||
※建物周辺情報はGoogleMapを使用しており、実際とは若干異なる場合がございます。
掲載情報について

室内写真 物件画像1