パークホームズ西巣鴨 2階

  • 総合トップ
  • 中古マンション
  • 一戸建て・土地
  • 投資・収益物件
  • 売りたい[売却査定]
  • 貸したい[賃料査定]

パークホームズ西巣鴨 2階
新着

価格
9,980
毎月の返済額
(目安)
loansimulationIcon
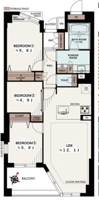
築年月 2004年8月 間取り 3LDK
専有面積 68.35m2 所在階 2階
方角 南東
所在地 東京都豊島区西巣鴨1-17-5
交通 JR山手線「大塚駅」徒歩10分
都営三田線「西巣鴨駅」徒歩12分

2階部分、南東向き住戸!リノベーション物件!

【特徴・設備】
■ペット飼育可
■LDK・洋室1・3は窓あり
■家具の配置がしやすい間取り
■カウンターキッチン
■3口ガスコンロ
■床暖房完備
■収納豊富
■独立洗面台
■室内洗濯置き場あり
■アフターサービス保証付

【リノベーション内容】
□キッチン交換
□浴室交換
□洗面交換
□トイレ交換
□水廻り床張替
□フローリング新規張替
□建具交換
□照明交換
□下足入
□全クロス貼替
□アクセントクロス
□ハウスクリーニング 等

2冠達成 恵比寿不動産は物件数No.1 中古マンション数No.1

パークホームズ西巣鴨 2階の
購入に関するお問い合わせはこちらから

contact us

恵比寿不動産までお気軽にお問い合わせください

お電話でのお問い合わせはこちら:03-6421-0543 10:00 - 19:00 (水曜定休)
恵比寿不動産店舗情報渋谷区東3-25-11 TOKYU REIT恵比寿ビル4階
オフィス内観写真
オフィス外観写真
リフォーム無料お見積りサービス

物件概要

物件名 パークホームズ西巣鴨
所在地
交通
問合せ番号 8522-208
物件特徴 -
物件条件 ペット可
価格 9,980 管理費 15,860円/月
修繕積立金 14,350円/月 その他費用 -
間取り 3LDK 方角 南東
専有面積 68.35m2 バルコニー面積 6.6m2
建物構造 RC 築年月 2004年8月
総戸数 52戸 総階数 地上7階 
駐車場 月額28000円~35000円 バイク置き場 -
駐輪場 月額200円~400円 土地権利 所有権
用途地域 第一種中高層住居専用地域 管理形態 日勤管理
管理会社 三井不動産レジデンシャルサービス(株) 分譲会社 三井不動産
施工会社 川口土木建築 設計会社 -
取引態様 仲介 小学校学区 -
周辺情報 ■ピーコックストア上池袋店(スーパー)まで約2分
■セブンイレブン豊島巣鴨新田店(コンビニ)まで約3分
■友仁堂薬局(ドラッグストア)まで約1分
現況 空室 入居/引渡時期 相談
更新日 2026年3月25日

備考

部屋設備

  • バス・トイレ別
  • 独立洗面台
  • 追い焚き
  • 温水洗浄便座
  • 浴室乾燥機
  • システムキッチン
  • カウンターキッチン
  • 食器洗浄機
  • 浄水器
  • ガスコンロ
  • 床暖房
  • エアコン
  • フローリング
  • 角部屋
  • 南向き
  • リノベーション

建物設備

  • エレベーター
  • オートロック
  • 宅配ボックス
  • 駐車場
  • バイク置き場
  • 駐輪場
  • 24時間ゴミ出し可
  • 防犯カメラ
  • ペット可

パークホームズ西巣鴨 2階のローンシミュレーション

借入金額
9,980
頭金
0万円
毎月の返済額
頭金
  • 支払い額万円※半角数字
金利
  • %※半角数字
返済年数
  • ※元利均等返済方式、最大優遇の場合で計算しています。
  • ※融資には個別審査があり、審査結果により、貸出条件(金利・貸出期間・借入額)が異なる場合がございます。
  • ※不動産のご購入に際しましては物件価格以外にその他諸費用が必要となります。
    諸費用に関する詳細につきましてはお問い合わせ下さいませ。

周辺地図

※建物周辺情報はGoogleMapを使用しており、実際とは若干異なる場合がございます。

掲載情報について

  • ※本掲載情報と現況に差異がある場合、現況を優先いたします。
  • ※掲載物件は売却済あるいは売出中止となる場合もあります。
  • ※掲載写真やパース(絵)、または間取図に描かれている家具や車などは、価格に含まれておりません。また、過去に撮影したものをそのまま利用している場合があり、名称・外観・背景等、実際のものとは異なる場合がございます。予めご了承ください。
  • ※仲介物件には所定の仲介手数料(消費税等相当額を含みます)が必要です。
2冠達成 恵比寿不動産は物件数No.1 中古マンション数No.1

パークホームズ西巣鴨 2階の
購入に関するお問い合わせはこちらから

contact us

恵比寿不動産までお気軽にお問い合わせください

お電話でのお問い合わせはこちら:03-6421-0543 10:00 - 19:00 (水曜定休)
恵比寿不動産店舗情報渋谷区東3-25-11 TOKYU REIT恵比寿ビル4階
オフィス内観写真
オフィス外観写真

部屋一覧

売出し待ちお知らせ希望 未公開情報の確認 お問い合わせ
所在階 間取り 専有面積 価格 お気に入り お問い合わせ 詳細
新着
2F
リノベ
3LDK
68.35m2 9,980
お問い合わせ
詳細を見る

最近見た物件

画像準備中

花川戸サニーマンション 7階

4,999

  • 東京都台東区花川戸2-2-5
  • 東京メトロ銀座線「浅草駅」徒歩5分
    東武伊勢崎線「浅草駅」徒歩4分
  • 1LDK  42.85m2
アデニウム吉祥寺おすすめ画像

アデニウム吉祥寺 1階

7,280

  • 東京都三鷹市下連雀8丁目5-5
  • JR中央・総武線「吉祥寺駅」徒歩分
  • 3LDK  78.59m2
パレ・ドール池袋おすすめ画像

パレ・ドール池袋 9階

59,680

  • 東京都豊島区東池袋3-8-5
  • JR山手線「池袋駅」徒歩8分
    東京メトロ有楽町線「東池袋駅」徒歩10分
  • 2SDK  49.50m2
東大島ファミールハイツおすすめ画像

東大島ファミールハイツ 10階

7,980

  • 東京都江東区大島9-4-1
  • 都営新宿線「東大島駅」徒歩3分
    都営新宿線「大島駅」徒歩11分
  • 4LDK  97.83m2
画像準備中

クレアホームズ小石川 3階

13,000

  • 東京都文京区小石川5-35-8
  • 東京メトロ丸ノ内線「茗荷谷駅」徒歩7分
    都営三田線「白山駅」徒歩17分
  • 2SLDK  78.42m2