31階部分、北東向き住戸!リノベーション物件!
【特徴・設備】
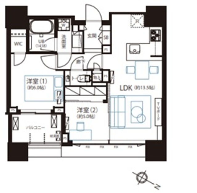
■全室窓あり
■家具の配置がしやすい間取り
■L字型カウンターキッチン
■3口ガスコンロ
■WICがあり収納豊富
■独立洗面台
■室内洗濯置き場あり
| 価格 | 1億9,800万円 |
毎月の返済額 (目安) |
|
|---|---|---|---|
| 築年月 | 2015年3月 | 間取り | 2LDK+WIC |
| 専有面積 | 54.26m2 | 所在階 | 31階 |
| 方角 | 北東 | ||
| 所在地 | 東京都豊島区南池袋1-11-19 | ||
| 交通 | 西武池袋線「池袋駅」徒歩6分 JR山手線「池袋駅」徒歩10分 |
||
【特徴・設備】
■全室窓あり
■家具の配置がしやすい間取り
■L字型カウンターキッチン
■3口ガスコンロ
■WICがあり収納豊富
■独立洗面台
■室内洗濯置き場あり

| 物件名 | グランドミレーニア池袋 | ||
|---|---|---|---|
| 所在地 | 東京都豊島区南池袋1-11-19 | ||
| 交通 |
西武池袋線「池袋駅」徒歩6分 JR山手線「池袋駅」徒歩10分 東京メトロ副都心線「雑司が谷駅」徒歩10分 |
||
| 問合せ番号 | 9193-3111 | ||
| 物件特徴 | タワーマンション、大規模マンション | ||
| 物件条件 | ペット可 | ||
| 価格 | 1億9,800万円 | 管理費 | 20,400円/月 |
| 修繕積立金 | 16,660円/月 | その他費用 | - |
| 間取り | 2LDK | 方角 | 北東 |
| 専有面積 | 54.26m2 | バルコニー面積 | 5.13m2 |
| 建物構造 | RC | 築年月 | 2015年3月 |
| 総戸数 | 411戸 | 総階数 | 地上31階 地下1階 |
| 駐車場 | 月額29,000円~50,000円 | バイク置き場 | 月額3,000円~7,000円 |
| 駐輪場 | 月額200円~500円 | 土地権利 | 所有権 |
| 用途地域 | 商業地域 | 管理形態 | 常駐管理 |
| 管理会社 | 住友不動産建物サービス | 分譲会社 | 住友不動産 |
| 施工会社 | 前田建設工業 | 設計会社 | - |
| 取引態様 | 仲介 | 小学校学区 | - |
| 周辺情報 | ■ミニピアゴ南池袋1丁目店(スーパー)まで約1分 ■セブンイレブン南池袋3丁目店まで約3分 ■調剤薬局ツルハドラッグ南池袋店(ドラッグストア)まで約2分 ■リコス南池袋1丁目店まで約1分 ■カフェ・ベローチェ南池袋1丁目店まで約2分 ■豊島区立南池袋小学校まで約8分 ■ミアヘルサ保育園ひびき池袋まで約4分 |
||
| 現況 | 空室 | 入居/引渡時期 | 相談 |
| 更新日 | 2026年4月7日 | ||
| 頭金 |
|
|---|---|
| 金利 |
|
| 返済年数 | 年 |
※建物周辺情報はGoogleMapを使用しており、実際とは若干異なる場合がございます。
掲載情報について

外観 物件画像1