駒場パーク・ホームズ 4階

  • 総合トップ
  • 中古マンション
  • 一戸建て・土地
  • 投資・収益物件
  • 売りたい[売却査定]
  • 貸したい[賃料査定]

駒場パーク・ホームズ 4階
新着

価格
15,990
毎月の返済額
(目安)
loansimulationIcon
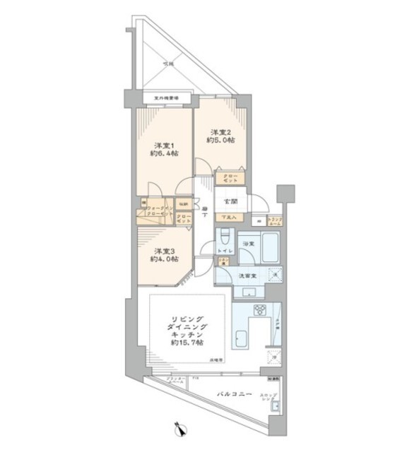
築年月 2001年8月 間取り 3LDK+WIC
専有面積 71.27m2 所在階 4階
方角 南西
所在地 東京都目黒区駒場1-1-16
交通 京王井の頭線「駒場東大前駅」徒歩8分
東急田園都市線「池尻大橋駅」徒歩12分

4階部分、南西向き住戸!陽当り・眺望良好!新規リノベーション物件!

【特徴・設備】
■ペット飼育可
■全室窓あり
■家具の配置がしやすい間取り
■U字型カウンターキッチン
■3口ガスコンロ
■WICがあり収納豊富
■独立洗面台
■室内洗濯置き場あり
■アフターサービス保証付

【新規内装リノベーション内容】※2025年10月完了
□フローリング新規貼替
□壁・天井クロス新規貼替
□給湯管新規交換(専有部)
□建具・玄関収納等新規交換
□オリジナル洗面化粧台新規交換
□TOTO製洗浄便座付トイレ新規交換
□LIXIL製ユニットバス新規交換(浴室換気乾燥機付)
□オリジナルシステムキッチン新規交換(食器洗い機付)
□照明器具新規設置
□エアコン1基新規設置
□給湯器新規交換(追焚式) 等

2冠達成 恵比寿不動産は物件数No.1 中古マンション数No.1

駒場パーク・ホームズ 4階の
購入に関するお問い合わせはこちらから

contact us

恵比寿不動産までお気軽にお問い合わせください

お電話でのお問い合わせはこちら:03-6421-0543 10:00 - 19:00 (水曜定休)
恵比寿不動産店舗情報渋谷区東3-25-11 TOKYU REIT恵比寿ビル4階
オフィス内観写真
オフィス外観写真
リフォーム無料お見積りサービス

物件概要

物件名 駒場パーク・ホームズ
所在地
交通
問合せ番号 9742-404
物件特徴 -
物件条件 ペット可
価格 15,990 管理費 9,600円/月
修繕積立金 29,220円/月 その他費用 2,100円/月
間取り 3LDK 方角 南西
専有面積 71.27m2 バルコニー面積 9.96m2
建物構造 RC 築年月 2001年8月
総戸数 40戸 総階数 地上8階 地下1階
駐車場 - バイク置き場 -
駐輪場 - 土地権利 所有権
用途地域 第一種中高層住居専用地域 管理形態 日勤管理
管理会社 三井不動産レジデンシャルサービス(株) 分譲会社 三井不動産
施工会社 三井建設 設計会社 -
取引態様 仲介 小学校学区 駒場小学校
周辺情報 ■まいばすけっと 駒場1丁目店   約320m
■マルエツプチ渋谷神泉店     約600m
■ライフ目黒大橋店        約680m
■東邦大学医療センター大橋病院  約1,020m
現況 空室 入居/引渡時期 即時
更新日 2025年11月28日

備考

部屋設備

  • バス・トイレ別
  • 独立洗面台
  • 追い焚き
  • 温水洗浄便座
  • 浴室乾燥機
  • システムキッチン
  • カウンターキッチン
  • 食器洗浄機
  • 浄水器
  • ガスコンロ
  • 床暖房
  • エアコン
  • ウォークインクローゼット
  • フローリング
  • 南向き
  • リノベーション

建物設備

  • エレベーター
  • オートロック
  • 宅配ボックス
  • トランクルーム
  • ペット可

駒場パーク・ホームズ 4階のローンシミュレーション

借入金額
15,990
頭金
0万円
毎月の返済額
頭金
  • 支払い額万円※半角数字
金利
  • %※半角数字
返済年数
  • ※元利均等返済方式、最大優遇の場合で計算しています。
  • ※融資には個別審査があり、審査結果により、貸出条件(金利・貸出期間・借入額)が異なる場合がございます。
  • ※不動産のご購入に際しましては物件価格以外にその他諸費用が必要となります。
    諸費用に関する詳細につきましてはお問い合わせ下さいませ。

周辺地図

※建物周辺情報はGoogleMapを使用しており、実際とは若干異なる場合がございます。

掲載情報について

  • ※本掲載情報と現況に差異がある場合、現況を優先いたします。
  • ※掲載物件は売却済あるいは売出中止となる場合もあります。
  • ※掲載写真やパース(絵)、または間取図に描かれている家具や車などは、価格に含まれておりません。また、過去に撮影したものをそのまま利用している場合があり、名称・外観・背景等、実際のものとは異なる場合がございます。予めご了承ください。
  • ※仲介物件には所定の仲介手数料(消費税等相当額を含みます)が必要です。
2冠達成 恵比寿不動産は物件数No.1 中古マンション数No.1

駒場パーク・ホームズ 4階の
購入に関するお問い合わせはこちらから

contact us

恵比寿不動産までお気軽にお問い合わせください

お電話でのお問い合わせはこちら:03-6421-0543 10:00 - 19:00 (水曜定休)
恵比寿不動産店舗情報渋谷区東3-25-11 TOKYU REIT恵比寿ビル4階
オフィス内観写真
オフィス外観写真

部屋一覧

売出し待ちお知らせ希望 未公開情報の確認 お問い合わせ
所在階 間取り 専有面積 価格 お気に入り お問い合わせ 詳細
新着
4F
リノベ
3LDK
71.27m2 15,990
お問い合わせ
詳細を見る

最近見た物件

オーベル月島リバージュグランおすすめ画像

オーベル月島リバージュグラン 8階

14,480

  • 東京都中央区月島3-2-7
  • 東京メトロ有楽町線「月島駅」徒歩5分
    都営大江戸線「月島駅」徒歩5分
  • 3LDK  83.74m2
画像準備中

高円寺サマリヤマンション 11階

3,599

  • 東京都杉並区高円寺南1-6-5
  • 東京メトロ丸ノ内線「東高円寺駅」徒歩1分
    東京メトロ丸ノ内線「新中野駅」徒歩12分
  • 1DK  33.03m2
画像準備中

アトラス麻布台 10階

56,000

  • 東京都港区麻布台3-3-9
  • 東京メトロ南北線「麻布十番駅」徒歩6分
    都営大江戸線「麻布十番駅」徒歩6分
  • 2SLDK  88.67m2
画像準備中

グランスイート文京本駒込 6階

11,900

  • 東京都文京区本駒込4-36-7
  • JR山手線「駒込駅」徒歩10分
    東京メトロ南北線「駒込駅」徒歩11分
  • 2LDK  69.39m2
画像準備中

キャナルファーストタワー 27階

12,000

  • 東京都江東区東雲1-9-42
  • 東京メトロ有楽町線「辰巳駅」徒歩9分
    りんかい線「東雲駅」徒歩13分
  • 3LDK  74.41m2
フェアロージュ杉並井草おすすめ画像

フェアロージュ杉並井草 3階

6,990

  • 東京都杉並区井草2-5-1
  • 西武新宿線「井荻駅」徒歩5分
    西武新宿線「下井草駅」徒歩6分
  • 3LDK  66.70m2