22階部分、南西向き住戸!新規フルリノベーション物件!
【特徴・設備】
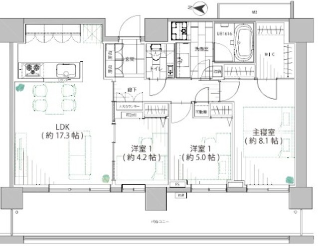
■ペット飼育可
■全室窓あり
■家具の配置がしやすい間取り
■カウンターキッチン
■3口ガスコンロ
■WICがあり収納豊富
■独立洗面台
■室内洗濯置き場あり
■アフターサービス保証付
【新規フルリノベーション内容】
□新規フローリング張り
□建具・洋室収納・玄関収納新規交換
□壁・天井クロス全室貼替
□水廻り・玄関床新規タイル貼
□照明器具・ガス給湯器新規交換
□エアコン・LDK・洋室1・2新規取付
□電気式床暖房新規取付
□洗濯機パン・洗濯水栓新規交換
□システムキッチン新規交換
□ユニットバス新規交換
□LED照明付洗面化粧台新規交換
□暖房温水便座付トイレ新規交換
□ハウスクリーニング 等
