33階部分、北東向き住戸!新規フルリフォーム物件!
【特徴・設備】
■全室窓あり
■家具の配置がしやすい間取り
■システムキッチン
■収納あり
■独立洗面台
■室内洗濯置き場あり
【新規フルリフォーム内容】※2025年6月完了予定
□システムキッチン交換
□洗面化粧台交換
□トイレ交換
□フロアタイル張替
□照明交換
□床暖房交換
□ユニットバス交換
□フローリング貼替
□クロス貼替
□建具交換 等
| 価格 | 6億9,800万円 |
毎月の返済額 (目安) |
|
|---|---|---|---|
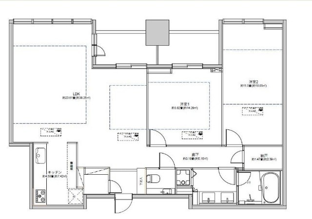
| 築年月 | 2009年6月 | 間取り | 2LDK |
| 専有面積 | 102.58m2 | 所在階 | 33階 |
| 方角 | 北東 | ||
| 所在地 | 東京都港区三田1-6-3 | ||
| 交通 | 東京メトロ南北線「麻布十番駅」徒歩4分 都営大江戸線「麻布十番駅」徒歩4分 |
||
【特徴・設備】
■全室窓あり
■家具の配置がしやすい間取り
■システムキッチン
■収納あり
■独立洗面台
■室内洗濯置き場あり
【新規フルリフォーム内容】※2025年6月完了予定
□システムキッチン交換
□洗面化粧台交換
□トイレ交換
□フロアタイル張替
□照明交換
□床暖房交換
□ユニットバス交換
□フローリング貼替
□クロス貼替
□建具交換 等

| 物件名 | シティタワー麻布十番 | ||
|---|---|---|---|
| 所在地 | 東京都港区三田1-6-3 | ||
| 交通 |
東京メトロ南北線「麻布十番駅」徒歩4分 都営大江戸線「麻布十番駅」徒歩4分 都営大江戸線「赤羽橋駅」徒歩4分 都営三田線「芝公園駅」徒歩10分 |
||
| 問合せ番号 | 992-3311 | ||
| 物件特徴 | タワーマンション、大規模マンション | ||
| 物件条件 | ペット可、楽器可 | ||
| 価格 | 6億9,800万円 | 管理費 | 27,653円/月 |
| 修繕積立金 | 25,700円/月 | その他費用 | - |
| 間取り | 2LDK | 方角 | 北東 |
| 専有面積 | 102.58m2 | バルコニー面積 | 11.04m2 |
| 建物構造 | RC | 築年月 | 2009年6月 |
| 総戸数 | 502戸 | 総階数 | 地上38階 地下2階 |
| 駐車場 | 39,000円~68,000円/月額 | バイク置き場 | 3,000円~5,000円/月額 |
| 駐輪場 | 300円~1,200円/月額 | 土地権利 | 所有権 |
| 用途地域 | 第二種低層住居専用地域、近隣商業地域 | 管理形態 | 日勤管理 |
| 管理会社 | 住友不動産建物サービス株式会社 | 分譲会社 | 住友不動産株式会社 |
| 施工会社 | 清水・奥村建設共同企業体 | 設計会社 | INA・日建設計共同企業体 |
| 取引態様 | 仲介 | 小学校学区 | 赤羽小学校 |
| 周辺情報 | ■日進ワールドデリカテッセン 徒歩 2分 ■成城石井 徒歩 4分 ■赤羽小学校 徒歩 7分 ■三田中学校 徒歩17分 ■セブンイレブン 徒歩 1分 ■国際医療福祉大学三田病院 徒歩 2分 ■マツモトキヨシ 徒歩 8分 ■JOYFIT24麻布十番 徒歩 7分 ■六本木ヒルズ 徒歩 12分 |
||
| 現況 | 空室 | 入居/引渡時期 | 即時 |
| 更新日 | 2025年11月20日 | ||
| 頭金 |
|
|---|---|
| 金利 |
|
| 返済年数 | 年 |
※建物周辺情報はGoogleMapを使用しており、実際とは若干異なる場合がございます。
掲載情報について

室内写真 物件画像1