利回り4%以上 5%以下の投資・収益物件一覧
検索条件:利回り4%以上 5%以下

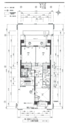
| 価格 | 3,300万円 | ||
|---|---|---|---|
| 利回り | 4.00% | ||
| 所在地 | 東京都墨田区向島4-2-14 | ||
| 交通 |
都営浅草線「押上(スカイツリー前)駅」徒歩9分 東京メトロ半蔵門線「押上(スカイツリー前)駅」徒歩9分 東武伊勢崎線「曳舟駅」徒歩8分 東武伊勢崎線「とうきょうスカイツリー駅」徒歩11分 京成押上線「京成曳舟駅」徒歩12分 |
||
| 築年月 | 1993年3月 | 総階数 | 地上13階 |
| 構造 | SRC | 総戸数 | 58戸 |
| 建物面積 | 33.01m2 | 間取り | 1K |
ご希望の物件が見つからない場合は…


