6階部分、南東向き住戸!リノベーション物件!
【特徴・設備】
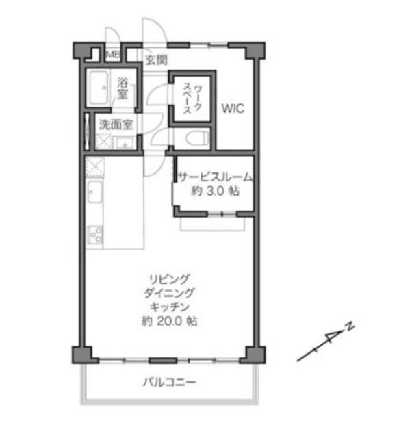
■LDKは窓あり
■家具の配置がしやすい間取り
■システムキッチン
■3口ガスコンロ
■WICがあり収納豊富
■独立洗面台
■室内洗濯置き場あり
■アフターサービス保証付
【リノベーション内容】
□フローリング・クロス貼替
□間取変更
□キッチン・浴室・洗面・トイレ・建具交換 等
| 価格 | ***万円 |
毎月の返済額 (目安) |
|
|---|---|---|---|
| 築年月 | 1978年10月 | 間取り | 1SLDK+WIC |
| 専有面積 | 55.00m2 | 所在階 | 6階 |
| 方角 | 南東 | ||
| 所在地 | 東京都世田谷区池尻4-29-17 | ||
| 交通 | 京王井の頭線「池ノ上駅」徒歩11分 京王井の頭線「駒場東大前駅」徒歩12分 |
||
【特徴・設備】
■LDKは窓あり
■家具の配置がしやすい間取り
■システムキッチン
■3口ガスコンロ
■WICがあり収納豊富
■独立洗面台
■室内洗濯置き場あり
■アフターサービス保証付
【リノベーション内容】
□フローリング・クロス貼替
□間取変更
□キッチン・浴室・洗面・トイレ・建具交換 等

| 物件名 | 池ノ上グロリアハイツ | ||
|---|---|---|---|
| 所在地 | 東京都世田谷区池尻4-29-17 | ||
| 交通 |
京王井の頭線「池ノ上駅」徒歩11分 京王井の頭線「駒場東大前駅」徒歩12分 東急田園都市線「池尻大橋駅」徒歩14分 |
||
| 問合せ番号 | 2431-6F | ||
| 物件特徴 | ヴィンテージ | ||
| 物件条件 | - | ||
| 価格 | ***万円 | 管理費 | ***円/月 |
| 修繕積立金 | ***円/月 | その他費用 | *** |
| 間取り | 1SLDK | 方角 | 南東 |
| 専有面積 | 55.00m2 | バルコニー面積 | 6.12m2 |
| 建物構造 | RC | 築年月 | 1978年10月 |
| 総戸数 | 70戸 | 総階数 | 地上7階 |
| 駐車場 | 26,000円~30,000円/月額 | バイク置き場 | - |
| 駐輪場 | - | 土地権利 | 所有権 |
| 用途地域 | 第一種中高層住居専用地域、第一種住居地域 | 管理形態 | 日勤管理 |
| 管理会社 | ㈱小田急ハウジング | 分譲会社 | 三平興業 |
| 施工会社 | 三平興業 | 設計会社 | - |
| 取引態様 | 仲介 | 小学校学区 | 多聞小学校 |
| 周辺情報 | ■オーケー 池尻大橋店(スーパー)まで約8分 ■ローソンストア100 LS池尻店(コンビニ)まで約1分 ■シンセン薬局池ノ上店(ドラッグストア)まで約3分 |
||
| 現況 | 成約済 | 入居/引渡時期 | *** |
| 更新日 | 2025年11月23日 | ||
※建物周辺情報はGoogleMapを使用しており、実際とは若干異なる場合がございます。
掲載情報について

室内写真 物件画像1