ザ・パークハウス渋谷南平台 3階 成約済みの部屋 2903-312

  • 総合トップ
  • 中古マンション
  • 一戸建て・土地
  • 投資・収益物件
  • 売りたい[売却査定]
  • 貸したい[賃料査定]

ザ・パークハウス渋谷南平台 成約済み物件 (2903-312)

こちらのお部屋は既に成約済みです。

お手数ですが、建物詳細ページより同マンションで売り出し中の別のお部屋をご覧いただくか、
物件検索より最新の物件をお探しください。

価格
***
毎月の返済額
(目安)
loansimulationIcon
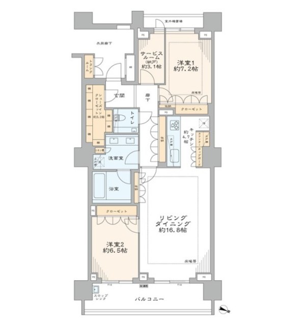
築年月 2019年11月 間取り 2SLDK+SIC
専有面積 95.01m2 所在階 3階
方角
所在地 東京都渋谷区南平台町5-3
交通 JR山手線「渋谷駅」徒歩7分
JR埼京線「渋谷駅」徒歩7分

3階部分、東向き住戸!新規内装リノベーション物件!

【特徴・設備】
■ペット飼育可
■全室窓あり
■家具の配置がしやすい間取り
■システムキッチン
■3口ガスコンロ
■収納豊富
■独立洗面台
■室内洗濯置き場あり
■アフターサービス保証付

【新規内装リノベーション内容】※2025年5月完了
□ガラストップコンロ新規交換
□浴室換気乾燥機新規交換
□TOTO製洗浄便座付トイレ新規交換(手洗いカウンター既存)
□壁・天井クロス新規貼替
□照明器具一部新規設置
□給湯器新規交換(追焚式) 等

2冠達成 恵比寿不動産は物件数No.1 中古マンション数No.1

物件概要

物件名 ザ・パークハウス渋谷南平台
所在地
交通
問合せ番号 2903-312
物件特徴 大規模マンション
物件条件 ペット可、楽器可
価格 *** 管理費 ***円/月
修繕積立金 ***円/月 その他費用 ***
間取り 2SLDK 方角
専有面積 95.01m2 バルコニー面積 13.23m2
建物構造 RC 築年月 2019年11月
総戸数 100戸 総階数 地上10階 地下1階
駐車場 60,000円/月 バイク置き場 5,000円/月
駐輪場 200円~1,000円/月 土地権利 所有権
用途地域 第二種住居地域 管理形態 日勤管理
管理会社 三菱地所コミュニティ株式会社 分譲会社 三菱地所レジデンス株式会社、大林新星和不動産株式会社、東急不動産株式会社
施工会社 東急建設株式会社 設計会社 東急建設株式会社
取引態様 仲介 小学校学区 神南小学校
周辺情報 ■マルエツプチ渋谷神泉店(スーパー)まで約5分
■ローソン南平台店(コンビニ)まで約2分
■さくらが丘薬局(ドラックストア)まで約3分
現況 成約済 入居/引渡時期 ***
更新日 2025年11月22日

備考

部屋設備

  • バス・トイレ別
  • 独立洗面台
  • 追い焚き
  • 温水洗浄便座
  • 浴室乾燥機
  • システムキッチン
  • 食器洗浄機
  • 浄水器
  • ガスコンロ
  • 床暖房
  • エアコン
  • シューズインクローゼット
  • ウォークインクローゼット
  • フローリング
  • リノベーション

建物設備

  • エレベーター
  • オートロック
  • 宅配ボックス
  • TVドアホン
  • トランクルーム
  • 駐車場
  • 大型駐車場
  • バイク置き場
  • 駐輪場
  • ラウンジ
  • フロントサービス
  • 24時間ゴミ出し可
  • 内廊下
  • 管理人常駐
  • 防犯カメラ
  • BS
  • CS
  • CATV
  • インターネット
  • 閑静な住宅街
  • ペット可
  • 楽器可

周辺地図

※建物周辺情報はGoogleMapを使用しており、実際とは若干異なる場合がございます。

掲載情報について

  • ※本掲載情報と現況に差異がある場合、現況を優先いたします。
  • ※掲載物件は売却済あるいは売出中止となる場合もあります。
  • ※掲載写真やパース(絵)、または間取図に描かれている家具や車などは、価格に含まれておりません。また、過去に撮影したものをそのまま利用している場合があり、名称・外観・背景等、実際のものとは異なる場合がございます。予めご了承ください。
  • ※仲介物件には所定の仲介手数料(消費税等相当額を含みます)が必要です。
2冠達成 恵比寿不動産は物件数No.1 中古マンション数No.1

部屋一覧

売出し待ちお知らせ希望 未公開情報の確認 お問い合わせ
所在階 間取り 専有面積 価格 お気に入り お問い合わせ 詳細

最近見た物件

パークサイド芝大門おすすめ画像

パークサイド芝大門 7階

***

  • 東京都港区芝大門1-7-4
  • 都営浅草線「大門駅」徒歩1分
    都営大江戸線「大門駅」徒歩1分
  • 1K  22.93m2
ウェルシャン第2池袋おすすめ画像

ウェルシャン第2池袋 2階

4,898

  • 東京都豊島区南池袋1-8-25
  • JR山手線「池袋駅」徒歩6分
    JR湘南新宿ライン「池袋駅」徒歩6分
  • 1LDK  45.48m2
エンゼル大森グランディアおすすめ画像

エンゼル大森グランディア 4階

7,990

  • 東京都大田区大森北5-16-1
  • JR京浜東北線「大森駅」徒歩12分
    京急本線「平和島駅」徒歩14分
  • 3LDK  67.52m2
シャンボール武蔵小山おすすめ画像

シャンボール武蔵小山 2階

***

  • 東京都品川区荏原4-3-2
  • 東急目黒線「武蔵小山駅」徒歩8分
    東急池上線「戸越銀座駅」徒歩11分
  • 3LDK  71.29m2
モリス御徒町おすすめ画像

モリス御徒町 11階

9,499

  • 東京都台東区小島1-6-4
  • 都営大江戸線「新御徒町駅」徒歩5分
    つくばエクスプレス「新御徒町駅」徒歩5分
  • 3LDK  54.42m2
ワールドパレスおすすめ画像

ワールドパレス 2階

***

  • 東京都大田区山王1-41-5
  • JR京浜東北線「大森駅」徒歩8分
  • 2LDK  64.27m2