2階部分、北向き角部屋!
【特徴・設備】
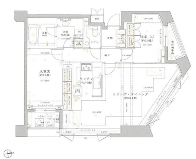
■全室窓あり
■家具の配置がしやすい間取り
■U字型システムキッチン
■3口ガスコンロ
■収納豊富
■独立洗面台
■室内洗濯置き場あり
| 価格 | ***万円 |
毎月の返済額 (目安) |
|
|---|---|---|---|
| 築年月 | 2003年3月 | 間取り | 2LDK |
| 専有面積 | 84.44m2 | 所在階 | 2階 |
| 方角 | 東 | ||
| 所在地 | 東京都渋谷区東3-1-17 | ||
| 交通 | JR山手線「恵比寿駅」徒歩9分 JR埼京線「恵比寿駅」徒歩9分 |
||
【特徴・設備】
■全室窓あり
■家具の配置がしやすい間取り
■U字型システムキッチン
■3口ガスコンロ
■収納豊富
■独立洗面台
■室内洗濯置き場あり

| 物件名 | パークハウス広尾 | ||
|---|---|---|---|
| 所在地 | 東京都渋谷区東3-1-17 | ||
| 交通 |
JR山手線「恵比寿駅」徒歩9分 JR埼京線「恵比寿駅」徒歩9分 JR湘南新宿ライン「恵比寿駅」徒歩9分 東京メトロ日比谷線「恵比寿駅」徒歩9分 東京メトロ日比谷線「広尾駅」徒歩15分 |
||
| 問合せ番号 | 398-207 | ||
| 物件特徴 | - | ||
| 物件条件 | - | ||
| 価格 | ***万円 | 管理費 | ***円/月 |
| 修繕積立金 | ***円/月 | その他費用 | *** |
| 間取り | 2LDK | 方角 | 東 |
| 専有面積 | 84.44m2 | バルコニー面積 | 4.68m2 |
| 建物構造 | SRC | 築年月 | 2003年3月 |
| 総戸数 | 40戸 | 総階数 | 地上10階 地下1階 |
| 駐車場 | 40,000~44,000円/月 | バイク置き場 | - |
| 駐輪場 | - | 土地権利 | 所有権 |
| 用途地域 | 第二種中高層住居専用地域 | 管理形態 | 巡回管理 |
| 管理会社 | 株式会社ダイヤコミュニティー | 分譲会社 | 三菱地所株式会社 |
| 施工会社 | 大成建設株式会社 | 設計会社 | - |
| 取引態様 | 仲介 | 小学校学区 | 広尾小学校 |
| 周辺情報 | ■ライフ渋谷東店(スーパー)まで約8分 ■ローソン恵比寿プライムスクエア店(コンビニ)まで約4分 ■ときわ堂薬局(ドラックストア)まで約7分 |
||
| 現況 | 成約済 | 入居/引渡時期 | *** |
| 更新日 | 2025年7月24日 | ||
※建物周辺情報はGoogleMapを使用しており、実際とは若干異なる場合がございます。
掲載情報について

室内写真 物件画像1