最上階、南西向き住戸!令和5年7月リノベーション物件!富士山ビューの眺望♪
【特徴・設備】
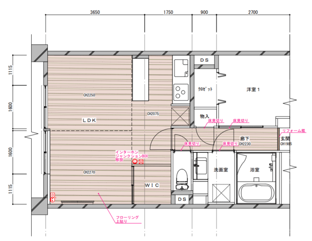
■家具の配置がしやすい間取り
■全室窓あり
■カウンターキッチン
■3口ガスコンロ
■WICがあり収納豊富
■独立洗面台
■室内洗濯置き場あり
【リノベーション内容】※令和5年7月完了
□給湯器交換
□システムキッチン交換
□ユニットバス交換
□洗面台交換
□トイレ交換
□全室クロス張替
□全フローリング張替
□全建具交換
□CF張替
□下足入れ交換
□洗濯水栓器具交換
□防水パン交換
□スイッチパネル設置
□スポットライト設置
□ダウンライト設置
□照明器具設置
□玄関人感センサー設置 等





