中目黒マンション 4階

  • 総合トップ
  • 中古マンション
  • 一戸建て・土地
  • 投資・収益物件
  • 売りたい[売却査定]
  • 貸したい[賃料査定]

中目黒マンション 4階
新着

価格
7,680
毎月の返済額
(目安)
loansimulationIcon
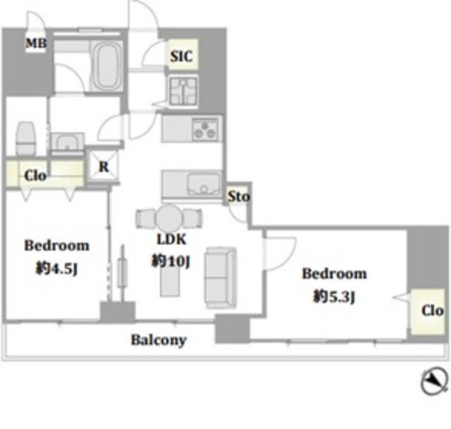
築年月 1965年9月 間取り 2LDK
専有面積 49.06m2 所在階 4階
方角 北東
所在地 東京都目黒区上目黒1-5-10
交通 東急東横線「中目黒駅」徒歩2分
東京メトロ日比谷線「中目黒駅」徒歩2分

4階部分、北東向き住戸!リノベーション物件!

【特徴・設備】
■全室窓あり
■家具の配置がしやすい間取り
■カウンターキッチン
■3口ガスコンロ
■WICがあり収納豊富
■独立洗面台
■室内洗濯置き場あり
■アフターサービス保証付

2冠達成 恵比寿不動産は物件数No.1 中古マンション数No.1

中目黒マンション 4階の
購入に関するお問い合わせはこちらから

contact us

恵比寿不動産までお気軽にお問い合わせください

お電話でのお問い合わせはこちら:03-6421-0543 10:00 - 19:00 (水曜定休)
恵比寿不動産店舗情報渋谷区東3-25-11 TOKYU REIT恵比寿ビル4階
オフィス内観写真
オフィス外観写真
リフォーム無料お見積りサービス

物件概要

物件名 中目黒マンション
所在地
交通
問合せ番号 589-412
物件特徴 -
物件条件 -
価格 7,680 管理費 10,700円/月
修繕積立金 10,700円/月 その他費用 -
間取り 2LDK 方角 北東
専有面積 49.06m2 バルコニー面積 5.5m2
建物構造 RC 築年月 1965年9月
総戸数 96戸 総階数 地上10階 地下9階
駐車場 - バイク置き場 -
駐輪場 - 土地権利 所有権
用途地域 準工業地域 管理形態 日勤管理
管理会社 ㈱大京アステージ 分譲会社 国分建設㈱
施工会社 国分建設㈱ 設計会社 -
取引態様 仲介 小学校学区 中目黒小学校
周辺情報 ■中目黒本店 東急ストア(スーパー)まで約2分
■セブンイレブン 上目黒1丁目店(コンビニ)まで約1分
■キタオカ薬局中目黒本店(ドラッグストア)まで約1分
現況 空室 入居/引渡時期 即時
更新日 2026年4月10日

備考

部屋設備

  • バス・トイレ別
  • 独立洗面台
  • 追い焚き
  • 温水洗浄便座
  • 浴室乾燥機
  • システムキッチン
  • カウンターキッチン
  • 食器洗浄機
  • 浄水器
  • ガスコンロ
  • エアコン
  • シューズインクローゼット
  • フローリング
  • 角部屋
  • リノベーション

建物設備

  • エレベーター
  • TVドアホン
  • 24時間ゴミ出し可
  • 各階ゴミ置き場
  • 防犯カメラ
  • インターネット

中目黒マンション 4階のローンシミュレーション

借入金額
7,680
頭金
0万円
毎月の返済額
頭金
  • 支払い額万円※半角数字
金利
  • %※半角数字
返済年数
  • ※元利均等返済方式、最大優遇の場合で計算しています。
  • ※融資には個別審査があり、審査結果により、貸出条件(金利・貸出期間・借入額)が異なる場合がございます。
  • ※不動産のご購入に際しましては物件価格以外にその他諸費用が必要となります。
    諸費用に関する詳細につきましてはお問い合わせ下さいませ。

周辺地図

※建物周辺情報はGoogleMapを使用しており、実際とは若干異なる場合がございます。

掲載情報について

  • ※本掲載情報と現況に差異がある場合、現況を優先いたします。
  • ※掲載物件は売却済あるいは売出中止となる場合もあります。
  • ※掲載写真やパース(絵)、または間取図に描かれている家具や車などは、価格に含まれておりません。また、過去に撮影したものをそのまま利用している場合があり、名称・外観・背景等、実際のものとは異なる場合がございます。予めご了承ください。
  • ※仲介物件には所定の仲介手数料(消費税等相当額を含みます)が必要です。
2冠達成 恵比寿不動産は物件数No.1 中古マンション数No.1

中目黒マンション 4階の
購入に関するお問い合わせはこちらから

contact us

恵比寿不動産までお気軽にお問い合わせください

お電話でのお問い合わせはこちら:03-6421-0543 10:00 - 19:00 (水曜定休)
恵比寿不動産店舗情報渋谷区東3-25-11 TOKYU REIT恵比寿ビル4階
オフィス内観写真
オフィス外観写真

部屋一覧

売出し待ちお知らせ希望 未公開情報の確認 お問い合わせ
所在階 間取り 専有面積 価格 お気に入り お問い合わせ 詳細
新着
4F
リノベ
2LDK
49.06m2 7,680
お問い合わせ
詳細を見る

最近見た物件

東急ドエルアルス等々力おすすめ画像

東急ドエルアルス等々力 3階

5,299

  • 東京都世田谷区玉堤2-10-9
  • 東急大井町線「等々力駅」徒歩14分
  • 3LDK  70.66m2