3階部分、南西向き角部屋!新規リノベーション物件!
【特徴・設備】
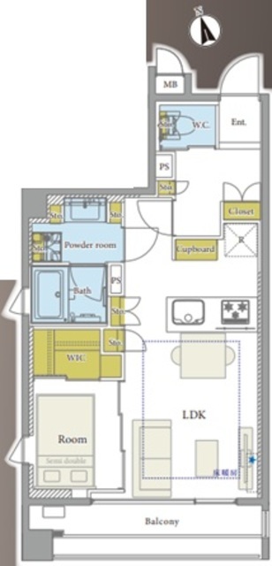
■ペット飼育可
■全室窓あり
■ビューバス
■二面採光
■家具の配置がしやすい間取り
■カウンターキッチン
■3口ガスコンロ
■WICがあり収納豊富
■独立洗面台
■室内洗濯置き場あり
■アフターサービス保証付
【新規リノベーション内容】
□システムキッチン
□ユニットバス
□洗面化粧台
□洗濯水栓・防水パン
□トイレ(温水洗浄機能付)
□フローリング
□建具・玄関収納
□収納棚
□壁・天井クロス
□フロアタイル
□エアコン(1基)
□照明器具
□スイッチ・コンセント
□ハウスクリーニング 等





